Wohnungen in einem neuen Gebäude in Strandnähe
| Registrationsnummer | IO-J0067 |
| Art des Angebots | Verkauf |
| Kategorie | Novostavby, Byty |
| Bezirk | Zadarska |
| Gemeindeteil | Vir |
| Preis | 215 000 € |
| Gesamtfläche | 62 m² |
| Gesamt bebaut fläche | 52 m² |
| Entfernung vom meer | 170 m |
| Strom | |
| Wasser | |
| Abfall | |
| Gas | |
| Klimaanlage | |
| Heizung | klimatizace, podlahové topení |
Auf der Insel Vir, nicht weit von Zadar entfernt, bieten wir den gerade fertiggestellten Bau einer Wohnanlage mit Apartments zum Verkauf an. Die Insel ist durch eine Brücke mit dem Festland verbunden und gehört bereits zu Dalmatien und seinem echten mediterranen Klima.
Das Wohngebäude wird nach den neuesten Standards gebaut, so dass die Wohnungen darin mit Fliesen und Parkettböden ausgestattet sein werden. Außerdem eine Klimaanlage, elektrische Rollläden mit Mückenschutz. Alle Apartments haben Brandschutztüren.
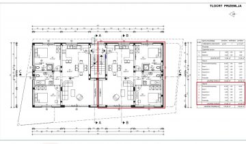
Im Erdgeschoss befindet sich ein Apartment mit zwei Schlafzimmern, einem Schlafzimmer mit Bad, einem Bad, einer Toilette, einer Küche mit Esszimmer und einem Wohnzimmer und zwei Balkonen. In der gesamten Wohnung gibt es eine Fußbodenheizung. Die Wohnung verfügt über einen Parkplatz und die Nutzfläche der Wohnung beträgt 115,42 m2. Der Verkaufspreis für diese Wohnung beträgt 354.360 €.
Im ersten Stock befinden sich zwei Apartments, die jeweils über ein Schlafzimmer, ein Badezimmer, eine Küche mit Esszimmer und ein Wohnzimmer, einen Balkon und einen Parkplatz verfügen. Die kleinere hat eine Fläche von 56,59 m2 und wird zum Preis von 178.380 € verkauft. Die größere hat eine Fläche von 58,76 m2 und wird für 184.380 € verkauft.
In der zweiten Etage befindet sich das Penthouse, das über zwei Schlafzimmer, ein Schlafzimmer mit Bad, ein Bad, ein WC, einen Ankleideraum, einen Abstellraum, eine Küche mit Esszimmer und Wohnzimmer und einen Balkon verfügt. Die Wohnung hat einen Parkplatz und die Nutzfläche der Wohnung beträgt 125,34 m2. Die Wohnung hat eine Dachterrasse von 97,42 m2. Der Verkaufspreis für dieses Penthouse beträgt 463.200 €.
Die Computerbilder zeigen gemäß der Baugenehmigung, wie das Apartmenthaus letztendlich aussehen wird. Das Foto vom Boden ist vom 24.05.2023 und wird bis Ende 2023 fertiggestellt sein, so dass der neue Eigentümer die Wohnungen selbst oder in Absprache mit dem Investor einrichten kann.
Das Apartmenthaus ist nur 170 Meter lang und ein großer Vorteil ist, dass die Apartments von einem Unternehmen verkauft werden, das die Mehrwertsteuer auf sie abführt. Das bedeutet, dass der Käufer im Nachhinein keine 3% Grunderwerbssteuer zahlen muss!
Sehr geehrte Kunden, eine Besichtigung der Immobilie ist nur mit einem unterzeichneten Maklervertrag möglich, der die Grundlage für alle weiteren Handlungen im Zusammenhang mit dem Kauf und Verkauf ist, und zwar in Übereinstimmung mit dem Datenschutzgesetz und dem Gesetz über die Vermittlung beim Kauf von Immobilien. Der Käufer zahlt eine gesetzliche Vermittlungsprovision in Höhe von 3% (+MwSt) des vereinbarten Preises.
Bei allen unseren Angeboten sind die Preise identisch mit dem Direktkauf bei der Agentur/dem Entwickler in Kroatien, da wir der offizielle Vertreter dieser Agenturen auf dem tschechischen, slowakischen, deutschen und österreichischen Markt sind. Dies gilt ohne zusätzliche Zuschläge für deutschsprachige Dienstleistungen.
Sehr geehrte Kunden, die Besichtigung von Immobilien, die Mitteilung der Lage und andere detaillierte Informationen sind nur mit einem unterzeichneten Vermittlungsvertrag möglich, der die Grundlage für weitere Aktionen wie den Kauf einer Immobilie bildet. Alles steht im Einklang mit dem Gesetz über die Vermittlung beim Kauf von Immobilien. Der Käufer zahlt eine gesetzliche Vermittlungsprovision in Höhe von 3% (+ MwSt.) des vereinbarten Preises, und zwar nur im Falle des Kaufs der Immobilie. Sollte der Kauf nicht zustande kommen, ist der Vertrag für Sie nicht bindend und wird annulliert. Wenn Sie ernsthaft an der Immobilie interessiert sind, senden wir Ihnen den Vertrag auf Anfrage zu.
Wir werden Ihnen innerhalb von 24 Stunden antworten.
Wir bieten nur geprüfte Immobilien an.
Wir garantieren eine hohe Servicequalität.
Wir können Ihnen bei der Vermittlung von Unterkünften während der Besichtigungen helfen.
- Ich habe eine Immobilie aus dem Angebot ausgewählt
- Ich kontaktiere den Makler
- Ich unterschreibe einen Vertretungsvertrag - Details hier! (die Unterzeichnung des Vertrags ist gesetzlich vorgeschrieben)
- Ich richte eine OIB ein - Details hier (die Einrichtung ist gesetzlich vorgeschrieben)
- Besichtigungen vor Ort
- Unterzeichnung der Reservierung, des Kaufvertrags