ZADAR, GORNJI BILIG - Wohnung mit Garage im Bau S3
| Registrationsnummer | DN-26440 |
| Art des Angebots | Verkauf |
| Kategorie | Appartements |
| Bezirk | Zadarska |
| Gemeindeteil | Zadar |
| Preis | 232 435 € |
| Gesamtfläche | 66 m² |
| Wohnfläche (Wohnung) | 66 m² |
| Entfernung vom meer | 2 000 m |
| Strom | |
| Wasser | |
| Klimaanlage | |
| Energieintensität | X - Nicht ausgestellt |
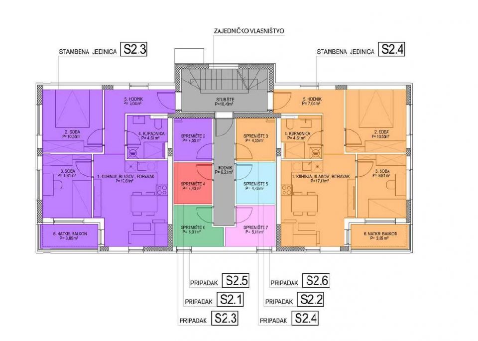
ZADAR, GORNJI BILIG - Wohnung mit Garage im Bau S3 Eine im Bau befindliche Wohnung in Gornji Bilig in Zadar steht zum Verkauf. Die Wohnung mit einer Gesamtwohnfläche von 48,62 m2 befindet sich im ersten Stock eines kleineren Wohnhauses mit sechs Wohneinheiten. Es besteht aus einem Wohnzimmer, einer Küche und einem Esszimmer, zwei Schlafzimmern, einem Badezimmer und einem Flur. Zur Wohnung gehören außerdem ein Balkon, zwei Garagenstellplätze und ein Abstellraum. Die Gesamtnutzfläche der Wohnung beträgt zusammen mit sämtlichem Zubehör 66,41 m2. Die Wohnung ist voll klimatisiert und die Badezimmer verfügen über Fußbodenheizung. Die Zimmerei besteht aus PVC, Moskitonetze und elektrische Jalousien sind installiert. Die Wärmedämmung an der Fassade besteht aus 10 cm Styropor. Geplanter Einzugstermin ist Mitte 2025. Die Wohnung befindet sich in einem ruhigen Teil der Stadt Zadar, weit weg vom Trubel der Stadt und den stark befahrenen Straßen. In der näheren Umgebung gibt es alle notwendigen Einrichtungen für einen ungestörten Alltag, wie zum Beispiel ein Geschäft, eine Schule, einen Kindergarten und einen Supermarkt. Das Stadtzentrum ist 2,5 km entfernt und der nächste Stadtstrand Kolovare ist 3 km von der Wohnung entfernt.
Bei allen unseren Angeboten sind die Preise identisch mit dem Direktkauf bei der Agentur/dem Entwickler in Kroatien, da wir der offizielle Vertreter dieser Agenturen auf dem tschechischen, slowakischen, deutschen und österreichischen Markt sind. Dies gilt ohne zusätzliche Zuschläge für deutschsprachige Dienstleistungen.
Sehr geehrte Kunden, die Besichtigung von Immobilien, die Mitteilung der Lage und andere detaillierte Informationen sind nur mit einem unterzeichneten Vermittlungsvertrag möglich, der die Grundlage für weitere Aktionen wie den Kauf einer Immobilie bildet. Alles steht im Einklang mit dem Gesetz über die Vermittlung beim Kauf von Immobilien. Der Käufer zahlt eine gesetzliche Vermittlungsprovision in Höhe von 3% (+ MwSt.) des vereinbarten Preises, und zwar nur im Falle des Kaufs der Immobilie. Sollte der Kauf nicht zustande kommen, ist der Vertrag für Sie nicht bindend und wird annulliert. Wenn Sie ernsthaft an der Immobilie interessiert sind, senden wir Ihnen den Vertrag auf Anfrage zu.
Wir werden Ihnen innerhalb von 24 Stunden antworten.
Wir bieten nur geprüfte Immobilien an.
Wir garantieren eine hohe Servicequalität.
Wir können Ihnen bei der Vermittlung von Unterkünften während der Besichtigungen helfen.
- Ich habe eine Immobilie aus dem Angebot ausgewählt
- Ich kontaktiere den Makler
- Ich unterschreibe einen Vertretungsvertrag - Details hier! (die Unterzeichnung des Vertrags ist gesetzlich vorgeschrieben)
- Ich richte eine OIB ein - Details hier (die Einrichtung ist gesetzlich vorgeschrieben)
- Besichtigungen vor Ort
- Unterzeichnung der Reservierung, des Kaufvertrags