ZADAR, KOŽINO – Schöne Wohnung 100 Meter vom Strand entfernt mit Panoramablick auf das Meer und die Inseln des Zadar-Archipels! S2
| Registrationsnummer | DN-38022 |
| Art des Angebots | Verkauf |
| Kategorie | Appartements |
| Bezirk | Zadarska |
| Gemeindeteil | Zadar - Okolica |
| Preis | 560 000 € |
| Gesamtfläche | 125 m² |
| Wohnfläche (Wohnung) | 125 m² |
| Entfernung vom meer | 100 m |
| Strom | |
| Wasser | |
| Klimaanlage |
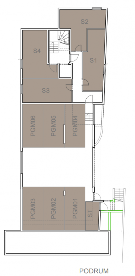
ZADAR, KOŽINO – Schöne Wohnung 100 Meter vom Strand entfernt mit Panoramablick auf das Meer und die Inseln des Zadar-Archipels! S2. Zum Verkauf steht eine luxuriöse Wohnung im ersten Stock eines Neubaus, nur 100 Meter vom Meer und einem wunderschönen Strand entfernt. Mit einer Nettofläche von 125,83 m2 bietet dieses elegant gestaltete Apartment Geräumigkeit, höchsten Komfort und eine spektakuläre Aussicht auf das Meer und die Inseln des Zadar-Archipels. Die Wohnung besteht aus drei geräumigen Schlafzimmern, drei modernen Badezimmern mit Fußbodenheizung, einem großen Wohnzimmer, das mit der Küche und dem Esszimmer verbunden ist, und einer überdachten Terrasse, die den perfekten Ort zum Entspannen bei unvergesslichen Sonnenuntergängen bietet. Für zusätzlichen Komfort sorgen eine Speisekammer innerhalb der Wohnung und ein geräumiger Abstellraum von 19,68 m2 im Keller. Hochwertige Konstruktion, sorgfältig ausgewählte Materialien und moderne Technologie sorgen für maximalen Komfort. Alle Zimmer verfügen über eine Klimaanlage und das Gebäude mit insgesamt vier Wohnungen ist mit einem Aufzug ausgestattet. Zur Wohnung gehören ein Garagenstellplatz und ein Außenstellplatz, was zusätzlich zur Alltagstauglichkeit beiträgt. Da es sich beim Eigentümer um eine juristische Person handelt, sind Käufer von der Zahlung der Grunderwerbsteuer befreit, was dieses Angebot noch attraktiver macht. Dieses Apartment liegt in der ruhigen und attraktiven Siedlung Kožino und ist ideal für alle, die Luxus und Privatsphäre in unmittelbarer Nähe von Zadar wünschen. Kožino ist für seine sauberen Strände, das kristallklare Meer und die entspannte Atmosphäre bekannt und liegt nur 5–6 Autominuten von Zadar entfernt. Zadar ist eine Stadt reich an Geschichte und Kultur, eine perfekte Kombination aus Tradition und modernem Lebensstil. Seine Sehenswürdigkeiten wie die Meeresorgel und der Gruß an die Sonne, die charmanten Gassen der Altstadt und das hervorragende gastronomische Angebot machen es zu einem der begehrtesten Wohnorte an der Adria. Kontaktieren Sie uns für weitere Informationen und vereinbaren Sie einen Besichtigungstermin dieser exklusiven Wohnung! berechnet
Bei allen unseren Angeboten sind die Preise identisch mit dem Direktkauf bei der Agentur/dem Entwickler in Kroatien, da wir der offizielle Vertreter dieser Agenturen auf dem tschechischen, slowakischen, deutschen und österreichischen Markt sind. Dies gilt ohne zusätzliche Zuschläge für deutschsprachige Dienstleistungen.
Sehr geehrte Kunden, die Besichtigung von Immobilien, die Mitteilung der Lage und andere detaillierte Informationen sind nur mit einem unterzeichneten Vermittlungsvertrag möglich, der die Grundlage für weitere Aktionen wie den Kauf einer Immobilie bildet. Alles steht im Einklang mit dem Gesetz über die Vermittlung beim Kauf von Immobilien. Der Käufer zahlt eine gesetzliche Vermittlungsprovision in Höhe von 3% (+ MwSt.) des vereinbarten Preises, und zwar nur im Falle des Kaufs der Immobilie. Sollte der Kauf nicht zustande kommen, ist der Vertrag für Sie nicht bindend und wird annulliert. Wenn Sie ernsthaft an der Immobilie interessiert sind, senden wir Ihnen den Vertrag auf Anfrage zu.
Wir werden Ihnen innerhalb von 24 Stunden antworten.
Wir bieten nur geprüfte Immobilien an.
Wir garantieren eine hohe Servicequalität.
Wir können Ihnen bei der Vermittlung von Unterkünften während der Besichtigungen helfen.
- Ich habe eine Immobilie aus dem Angebot ausgewählt
- Ich kontaktiere den Makler
- Ich unterschreibe einen Vertretungsvertrag - Details hier! (die Unterzeichnung des Vertrags ist gesetzlich vorgeschrieben)
- Ich richte eine OIB ein - Details hier (die Einrichtung ist gesetzlich vorgeschrieben)
- Besichtigungen vor Ort
- Unterzeichnung der Reservierung, des Kaufvertrags