ZADAR, NIN – Grundstück 1. Reihe zum Meer mit Projektdokumentation
| Registrationsnummer | DN-18539 |
| Art des Angebots | Verkauf |
| Kategorie | Bauland |
| Bezirk | Zadarska |
| Gemeindeteil | Nin |
| Gesamtfläche | 1 003 m² |
| Entfernung vom meer | 10 m |
| Strom | |
| Wasser | |
| Abfall | |
| Klimaanlage | |
| Heizung | ano |
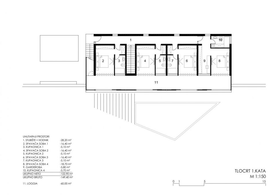
ZADAR, NIN - Grundstück 1. Reihe zum Meer mit Projektdokumentation Baugrundstück zum Verkauf in äußerst attraktiver Lage in Nin, 1. Reihe zum Meer. Das Grundstück mit einer Gesamtfläche von 1003 m2 hat eine Breite von 23 m und eine Länge von 43 m. Dem Projekt zufolge soll auf dem Grundstück eine Luxusvilla mit Swimmingpool gebaut werden, die aus einem Erdgeschoss bestehen wird und ein Obergeschoss. Im Erdgeschoss mit einer Gesamtfläche von 168 m2 befinden sich Wohnzimmer, Küche und Esszimmer, Badezimmer, Ankleidezimmer, Spielzimmer, Sauna und Garage. Im Obergeschoss befinden sich vier Schlafzimmer mit angeschlossenen Badezimmern und Loggien. Die Anlage wird einen beheizten Innen- und Außenpool, Fußbodenheizung und Klimaanlage in allen Räumen umfassen. Das Grundstück liegt in einer Schutzzone, in der nur Häuser gebaut werden dürfen, und ist das letzte Stück Land in der Bauzone. Ein Antrag auf Baugenehmigung wurde eingereicht. Das Grundstück liegt 10 m vom Meer entfernt. Die historische Stadt Nin ist aufgrund der wunderschönen Strände in der Umgebung und der Nähe zum nur 15 km entfernten Stadtzentrum von Zadar ein äußerst beliebtes Touristenziel. In Nin gibt es auch den längsten Sandstrand Kroatiens namens Kraljičina plaža. In der Nin-Lagune gibt es auch einen Ort mit Heilschlamm Peloid, dessen wohltuende Wirkung bereits in der Römerzeit bekannt war.
Bei allen unseren Angeboten sind die Preise identisch mit dem Direktkauf bei der Agentur/dem Entwickler in Kroatien, da wir der offizielle Vertreter dieser Agenturen auf dem tschechischen, slowakischen, deutschen und österreichischen Markt sind. Dies gilt ohne zusätzliche Zuschläge für deutschsprachige Dienstleistungen.
Sehr geehrte Kunden, die Besichtigung von Immobilien, die Mitteilung der Lage und andere detaillierte Informationen sind nur mit einem unterzeichneten Vermittlungsvertrag möglich, der die Grundlage für weitere Aktionen wie den Kauf einer Immobilie bildet. Alles steht im Einklang mit dem Gesetz über die Vermittlung beim Kauf von Immobilien. Der Käufer zahlt eine gesetzliche Vermittlungsprovision in Höhe von 3% (+ MwSt.) des vereinbarten Preises, und zwar nur im Falle des Kaufs der Immobilie. Sollte der Kauf nicht zustande kommen, ist der Vertrag für Sie nicht bindend und wird annulliert. Wenn Sie ernsthaft an der Immobilie interessiert sind, senden wir Ihnen den Vertrag auf Anfrage zu.
Wir werden Ihnen innerhalb von 24 Stunden antworten.
Wir bieten nur geprüfte Immobilien an.
Wir garantieren eine hohe Servicequalität.
Wir können Ihnen bei der Vermittlung von Unterkünften während der Besichtigungen helfen.
- Ich habe eine Immobilie aus dem Angebot ausgewählt
- Ich kontaktiere den Makler
- Ich unterschreibe einen Vertretungsvertrag - Details hier! (die Unterzeichnung des Vertrags ist gesetzlich vorgeschrieben)
- Ich richte eine OIB ein - Details hier (die Einrichtung ist gesetzlich vorgeschrieben)
- Besichtigungen vor Ort
- Unterzeichnung der Reservierung, des Kaufvertrags