ZADAR, PETRČANE - Punta Skala! Luxuriöses Penthouse 2 Minuten vom Strand entfernt mit Panoramablick auf das Meer! S3
| Registrationsnummer | DN-38672 |
| Art des Angebots | Verkauf |
| Kategorie | Appartements |
| Bezirk | Zadarska |
| Gemeindeteil | Zadar - Okolica |
| Preis | 842 000 € |
| Gesamtfläche | 159 m² |
| Wohnfläche (Wohnung) | 159 m² |
| Entfernung vom meer | 110 m |
| Strom | |
| Wasser | |
| Abfall | |
| Klimaanlage |
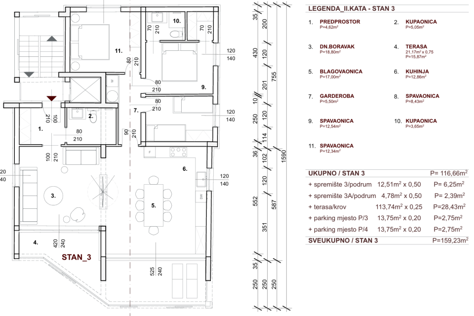
ZADAR, PETRČANE - Punta Skala! Luxuriöses Penthouse 2 Minuten vom Strand entfernt mit Panoramablick auf das Meer! S3. Zum Verkauf steht ein luxuriöses Penthouse im zweiten Stock eines modernen Neubaus, gelegen in der exklusiven Lage Punta Skala in Petrčani, nur 110 Meter vom Meer entfernt. Dieses einzigartige Anwesen mit einer Nettofläche von 159,23 m2 bietet einen herrlichen Meerblick aus jedem Winkel und einen besonderen Charme verleiht die private Dachterrasse mit 113,74 m2 – der perfekte Ort, um spektakuläre Sonnenuntergänge zu genießen, Kontakte zu knüpfen oder Ihre eigene Traumecke der Entspannung zu schaffen. Das Penthouse besteht aus drei geräumigen Schlafzimmern, zwei elegant eingerichteten Badezimmern, einem luftigen Wohnzimmer, einem Esszimmer, einer Küche und einem Kellerraum. Darüber hinaus stehen Ihnen zwei private Parkplätze und ein Aufzug zur Verfügung, der Sie direkt in Ihre Etage führt. Die Bauqualität ist auf höchstem Niveau – Stahlbetonkonstruktion und Ziegelwände, hochwertige Holz-Aluminium-Tischlerei, erstklassiges italienisches Porzellan der Marken Marazzi und Mirage, Eichenparkett in den Schlafzimmern, Fußbodenheizung in den Bädern und im Wohnzimmer, Multisplit-Klimaanlage von Mitsubishi und Sanitärkeramik des renommierten Herstellers Villeroy&Boch. Das Gebäude besticht zudem durch seinen luxuriösen Steintreppen- und Eingangsbereich, die gepflegte Gartengestaltung, Betonblöcke auf dem Parkplatz und die Sicherheit durch Sicherheitstüren. Die Lage ist außergewöhnlich – eine ruhige, exklusive Gegend am Meer und dennoch in der Nähe aller Annehmlichkeiten. In der Nähe befinden sich das renommierte Falkensteiner Resort, zahlreiche Cafés, Restaurants, Geschäfte und alles, was Sie für den Alltag oder einen erstklassigen Urlaub benötigen. Petrčane ist einer der begehrtesten Orte in der Region Zadar und bekannt für sein kristallklares Meer, seine natürliche Schönheit und seine hervorragende Anbindung an Zadar, das nur wenige Autominuten entfernt ist. Die Fertigstellung des Baus ist für Sommer 2026 geplant. Für weitere Informationen und zur Vereinbarung eines Besichtigungstermins kontaktieren Sie uns bitte – lassen Sie sich die Gelegenheit für eine solche Immobilie nicht entgehen.
Bei allen unseren Angeboten sind die Preise identisch mit dem Direktkauf bei der Agentur/dem Entwickler in Kroatien, da wir der offizielle Vertreter dieser Agenturen auf dem tschechischen, slowakischen, deutschen und österreichischen Markt sind. Dies gilt ohne zusätzliche Zuschläge für deutschsprachige Dienstleistungen.
Sehr geehrte Kunden, die Besichtigung von Immobilien, die Mitteilung der Lage und andere detaillierte Informationen sind nur mit einem unterzeichneten Vermittlungsvertrag möglich, der die Grundlage für weitere Aktionen wie den Kauf einer Immobilie bildet. Alles steht im Einklang mit dem Gesetz über die Vermittlung beim Kauf von Immobilien. Der Käufer zahlt eine gesetzliche Vermittlungsprovision in Höhe von 3% (+ MwSt.) des vereinbarten Preises, und zwar nur im Falle des Kaufs der Immobilie. Sollte der Kauf nicht zustande kommen, ist der Vertrag für Sie nicht bindend und wird annulliert. Wenn Sie ernsthaft an der Immobilie interessiert sind, senden wir Ihnen den Vertrag auf Anfrage zu.
Wir werden Ihnen innerhalb von 24 Stunden antworten.
Wir bieten nur geprüfte Immobilien an.
Wir garantieren eine hohe Servicequalität.
Wir können Ihnen bei der Vermittlung von Unterkünften während der Besichtigungen helfen.
- Ich habe eine Immobilie aus dem Angebot ausgewählt
- Ich kontaktiere den Makler
- Ich unterschreibe einen Vertretungsvertrag - Details hier! (die Unterzeichnung des Vertrags ist gesetzlich vorgeschrieben)
- Ich richte eine OIB ein - Details hier (die Einrichtung ist gesetzlich vorgeschrieben)
- Besichtigungen vor Ort
- Unterzeichnung der Reservierung, des Kaufvertrags