ZADAR, PRIVLAKA - Luxus-Penthouse mit Pool auf der Dachterrasse! S5
| Registrationsnummer | DN-35962 |
| Art des Angebots | Verkauf |
| Kategorie | Appartements |
| Bezirk | Zadarska |
| Gemeindeteil | Privlaka |
| Preis | 362 000 € |
| Gesamtfläche | 90 m² |
| Wohnfläche (Wohnung) | 90 m² |
| Entfernung vom meer | 110 m |
| Strom | |
| Wasser | |
| Klimaanlage |
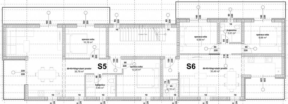
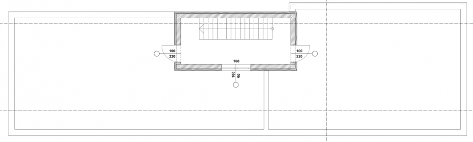
ZADAR, PRIVLAKA - Luxus-Penthouse mit Pool auf der Dachterrasse! S5. Zum Verkauf steht ein luxuriöses Penthouse in Privlaka, im zweiten Stock eines neuen Gebäudes gelegen, mit bezauberndem Blick auf das Meer und nur 110 Meter von der Küste entfernt. Dieses einzigartige Anwesen bietet die perfekte Mischung aus modernem Design, Komfort und Prestige mit einer sorgfältig durchdachten Aufteilung, die zwei geräumige Schlafzimmer, ein elegantes Badezimmer, eine offene Küche sowie ein Ess- und Wohnzimmer umfasst. Die Besonderheit dieses Penthouses sind zwei Terrassen – eine überdachte Terrasse, die sich ideal für den täglichen Genuss eignet, und eine spektakuläre Dachterrasse mit privatem Pool, perfekt zum Entspannen mit unvergesslichem Panoramablick auf das Meer und die Sonnenuntergänge. Die Wohnung ist mit einer Fußbodenheizung im gesamten Raum und einer Klimaanlage in allen Räumen ausgestattet, was zu jeder Jahreszeit maximalen Komfort gewährleistet. Zwei Parkplätze tragen zusätzlich zur Zweckmäßigkeit dieser Immobilie bei und machen sie zu einer idealen Wahl für ein Luxushaus, einen Urlaub oder eine Tourismusinvestition. Kontaktieren Sie uns für weitere Informationen und vereinbaren Sie einen Besichtigungstermin für dieses einzigartige Penthouse!
Bei allen unseren Angeboten sind die Preise identisch mit dem Direktkauf bei der Agentur/dem Entwickler in Kroatien, da wir der offizielle Vertreter dieser Agenturen auf dem tschechischen, slowakischen, deutschen und österreichischen Markt sind. Dies gilt ohne zusätzliche Zuschläge für deutschsprachige Dienstleistungen.
Sehr geehrte Kunden, die Besichtigung von Immobilien, die Mitteilung der Lage und andere detaillierte Informationen sind nur mit einem unterzeichneten Vermittlungsvertrag möglich, der die Grundlage für weitere Aktionen wie den Kauf einer Immobilie bildet. Alles steht im Einklang mit dem Gesetz über die Vermittlung beim Kauf von Immobilien. Der Käufer zahlt eine gesetzliche Vermittlungsprovision in Höhe von 3% (+ MwSt.) des vereinbarten Preises, und zwar nur im Falle des Kaufs der Immobilie. Sollte der Kauf nicht zustande kommen, ist der Vertrag für Sie nicht bindend und wird annulliert. Wenn Sie ernsthaft an der Immobilie interessiert sind, senden wir Ihnen den Vertrag auf Anfrage zu.
Wir werden Ihnen innerhalb von 24 Stunden antworten.
Wir bieten nur geprüfte Immobilien an.
Wir garantieren eine hohe Servicequalität.
Wir können Ihnen bei der Vermittlung von Unterkünften während der Besichtigungen helfen.
- Ich habe eine Immobilie aus dem Angebot ausgewählt
- Ich kontaktiere den Makler
- Ich unterschreibe einen Vertretungsvertrag - Details hier! (die Unterzeichnung des Vertrags ist gesetzlich vorgeschrieben)
- Ich richte eine OIB ein - Details hier (die Einrichtung ist gesetzlich vorgeschrieben)
- Besichtigungen vor Ort
- Unterzeichnung der Reservierung, des Kaufvertrags