ZADAR, PRIVLAKA - Modernes Penthouse mit Meerblick! Neubau! S3
| Registrationsnummer | DN-38852 |
| Art des Angebots | Verkauf |
| Kategorie | Appartements |
| Bezirk | Zadarska |
| Gemeindeteil | Privlaka |
| Preis | 270 000 € |
| Gesamtfläche | 87 m² |
| Wohnfläche (Wohnung) | 87 m² |
| Entfernung vom meer | 830 m |
| Strom | |
| Wasser | |
| Klimaanlage |
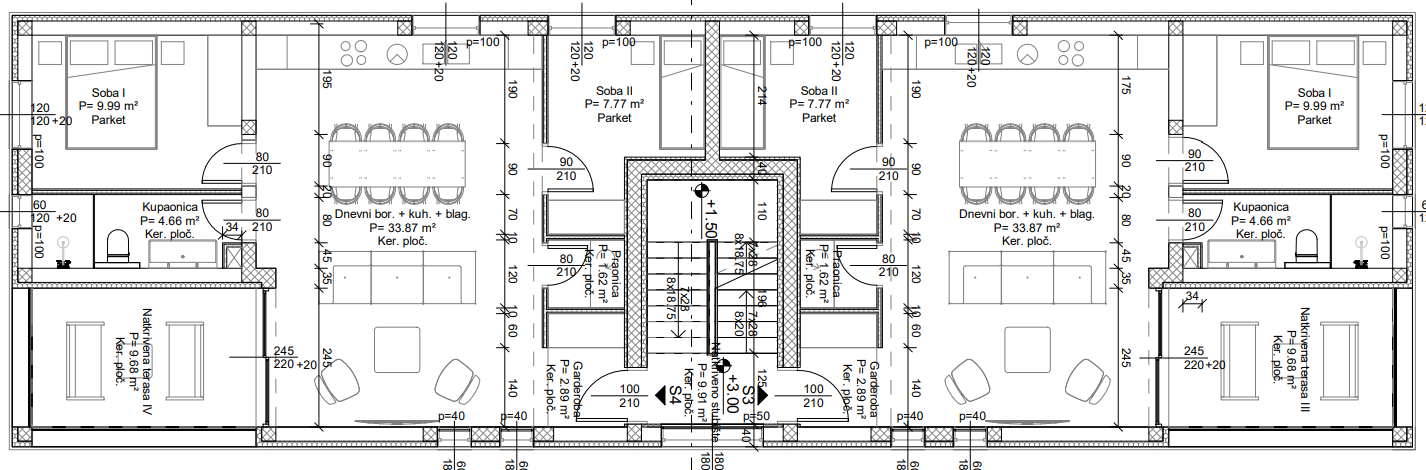
ZADAR, PRIVLAKA - Modernes Penthouse mit Meerblick! Neubau! S3. Zum Verkauf steht ein modern gestalteter Neubau mit insgesamt vier Wohnungen, gelegen in einem ruhigen Teil von Privlaka, nur 830 Meter vom Meer entfernt. Jedes Apartment bietet Meerblick. Genießen Sie die fußläufige Entfernung zum Strand, der in nur 15 Minuten bequem zu Fuß zu erreichen ist, während Sie mit dem Auto weniger als zwei Minuten benötigen. Das Gebäude ist durchdacht konzipiert, sodass alle Wohnungen maximalen Komfort und Funktionalität bieten – sie bestehen aus zwei Schlafzimmern, einem Badezimmer, einem geräumigen Wohnzimmer, einer Küche mit Essbereich und einer überdachten Terrasse. Jede Wohnung erhält einen Mehrwert durch eine eigene Waschküche und Garderobe – Details, die den Alltag einfacher und ordentlicher machen. Die Erdgeschosswohnungen begeistern außerdem mit ihren eigenen umzäunten Gärten, die sich perfekt zum Entspannen und Verweilen im Freien eignen, während die Penthäuser zusätzlich über private Dachterrassen mit Panoramablick verfügen – ideal für Sommertreffen, zum Sonnenbaden oder für abendliche Genüsse unter dem Sternenhimmel. Erdgeschosswohnungen verfügen über eine Wohnfläche von 65,64 m2 (ohne Garten und Parkplätze), während Penthäuser großzügige 84,4 m2 Wohnfläche (ohne Parkplätze) bieten und sich somit perfekt für alle eignen, die sich mehr Platz und Luxus wünschen. Zu jeder Wohnung gehören zwei Parkplätze, und zum hohen Ausstattungsstandard gehören Fußbodenheizung in der gesamten Wohnung, Klimaanlage in allen Zimmern und im Wohnzimmer, elektrische Rollläden und Moskitonetze – alles für maximalen Komfort das ganze Jahr über. Die Baufertigstellung ist für Sommer 2026 geplant, so dass Sie genügend Zeit haben, Ihren Einzug oder Ihre Investition zu planen. Privlaka ist eine charmante dalmatinische Stadt, die für ihre Sandstrände, das kristallklare Meer und die familiäre Atmosphäre bekannt ist. Es liegt in unmittelbarer Nähe der Stadt Zadar – einem historischen Juwel mit reichem kulturellem Erbe, ausgezeichneter Gastronomie und einem Flughafen, der Sie mit ganz Europa verbindet. Wenn Sie ein Zuhause am Meer, eine perfekte Ferienimmobilie oder eine kluge Investition in einem attraktiven Teil Dalmatiens suchen, kontaktieren Sie uns. Diese Gelegenheit sollten Sie sich nicht entgehen lassen.
Bei allen unseren Angeboten sind die Preise identisch mit dem Direktkauf bei der Agentur/dem Entwickler in Kroatien, da wir der offizielle Vertreter dieser Agenturen auf dem tschechischen, slowakischen, deutschen und österreichischen Markt sind. Dies gilt ohne zusätzliche Zuschläge für deutschsprachige Dienstleistungen.
Sehr geehrte Kunden, die Besichtigung von Immobilien, die Mitteilung der Lage und andere detaillierte Informationen sind nur mit einem unterzeichneten Vermittlungsvertrag möglich, der die Grundlage für weitere Aktionen wie den Kauf einer Immobilie bildet. Alles steht im Einklang mit dem Gesetz über die Vermittlung beim Kauf von Immobilien. Der Käufer zahlt eine gesetzliche Vermittlungsprovision in Höhe von 3% (+ MwSt.) des vereinbarten Preises, und zwar nur im Falle des Kaufs der Immobilie. Sollte der Kauf nicht zustande kommen, ist der Vertrag für Sie nicht bindend und wird annulliert. Wenn Sie ernsthaft an der Immobilie interessiert sind, senden wir Ihnen den Vertrag auf Anfrage zu.
Wir werden Ihnen innerhalb von 24 Stunden antworten.
Wir bieten nur geprüfte Immobilien an.
Wir garantieren eine hohe Servicequalität.
Wir können Ihnen bei der Vermittlung von Unterkünften während der Besichtigungen helfen.
- Ich habe eine Immobilie aus dem Angebot ausgewählt
- Ich kontaktiere den Makler
- Ich unterschreibe einen Vertretungsvertrag - Details hier! (die Unterzeichnung des Vertrags ist gesetzlich vorgeschrieben)
- Ich richte eine OIB ein - Details hier (die Einrichtung ist gesetzlich vorgeschrieben)
- Besichtigungen vor Ort
- Unterzeichnung der Reservierung, des Kaufvertrags