ZADAR, SKROČINI - Gebäude mit vier Wohnungen
| Registrationsnummer | DN-25287 |
| Art des Angebots | Verkauf |
| Kategorie | Häuser |
| Bezirk | Zadarska |
| Gemeindeteil | Zadar |
| Preis | 400 000 € |
| Gesamtfläche | 465 m² |
| Bebaute Fläche und Hof | 576 m² |
| Gesamt bebaut fläche | 576 m² |
| Strom | |
| Wasser | |
| Abfall | |
| Preis (original) | 450 000 € |
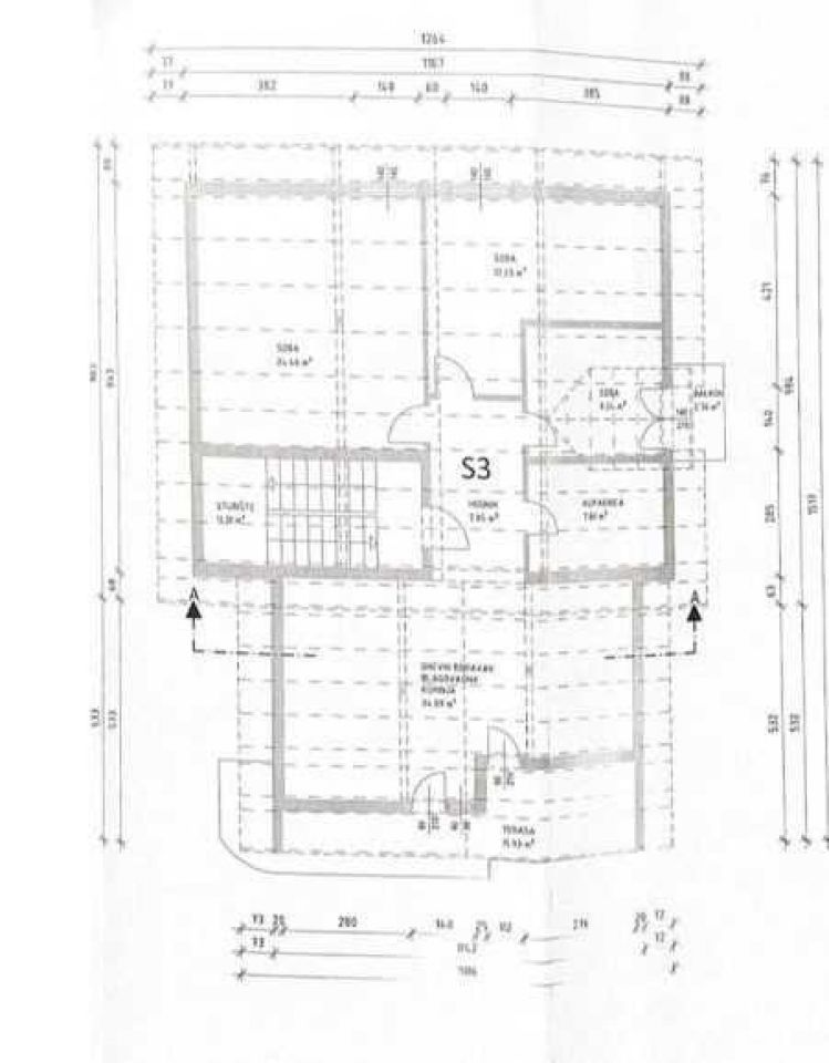
ZADAR, SKROČINI - Mehrfamilienhaus Ein Gebäude zum Verkauf in Skročini, im Bau. Das Gebäude besteht aus einem Erdgeschoss, einem ersten und zweiten Stock sowie einem Dachgeschoss. Die Bruttofläche des Gebäudes beträgt 509 m2 und der Nutzwert beträgt 465 m2. Das Erdgeschoss ist 110 m2 groß, die erste Etage ist 125 m2 groß, die zweite Etage ist ebenfalls 125 m2 groß und das Dachgeschoss ist 103 m2 groß. Die Grundstücksfläche beträgt 727m2. Wie bereits erwähnt, befindet sich das Gebäude in der Bauphase, die Struktur, Trennwände, Sanitär- und Elektroinstallation sowie externe PVC-Tischlerei wurden installiert. In der Nähe gibt es Geschäfte, Supermärkte und Restaurants und das Stadtzentrum ist 1,4 km entfernt. Zadar ist eine Stadt, die für ihre jahrhundertealte Geschichte und ihren kulturellen und künstlerischen Reichtum bekannt ist, der sich auf Schritt und Tritt in den alten Straßen dieser Stadt verbirgt. Neben antiken Denkmälern wie dem Forum Romanum oder der frühromanischen Kirche St. Donata, Zadar ist auch für seine zeitgenössischen Installationen „Gruß an die Sonne“ und „Meeresorgel“ bekannt, die Sie mit ihrem beeindruckenden Licht- und Klangspiel in Erstaunen versetzen werden.
Bei allen unseren Angeboten sind die Preise identisch mit dem Direktkauf bei der Agentur/dem Entwickler in Kroatien, da wir der offizielle Vertreter dieser Agenturen auf dem tschechischen, slowakischen, deutschen und österreichischen Markt sind. Dies gilt ohne zusätzliche Zuschläge für deutschsprachige Dienstleistungen.
Sehr geehrte Kunden, die Besichtigung von Immobilien, die Mitteilung der Lage und andere detaillierte Informationen sind nur mit einem unterzeichneten Vermittlungsvertrag möglich, der die Grundlage für weitere Aktionen wie den Kauf einer Immobilie bildet. Alles steht im Einklang mit dem Gesetz über die Vermittlung beim Kauf von Immobilien. Der Käufer zahlt eine gesetzliche Vermittlungsprovision in Höhe von 3% (+ MwSt.) des vereinbarten Preises, und zwar nur im Falle des Kaufs der Immobilie. Sollte der Kauf nicht zustande kommen, ist der Vertrag für Sie nicht bindend und wird annulliert. Wenn Sie ernsthaft an der Immobilie interessiert sind, senden wir Ihnen den Vertrag auf Anfrage zu.
Wir werden Ihnen innerhalb von 24 Stunden antworten.
Wir bieten nur geprüfte Immobilien an.
Wir garantieren eine hohe Servicequalität.
Wir können Ihnen bei der Vermittlung von Unterkünften während der Besichtigungen helfen.
- Ich habe eine Immobilie aus dem Angebot ausgewählt
- Ich kontaktiere den Makler
- Ich unterschreibe einen Vertretungsvertrag - Details hier! (die Unterzeichnung des Vertrags ist gesetzlich vorgeschrieben)
- Ich richte eine OIB ein - Details hier (die Einrichtung ist gesetzlich vorgeschrieben)
- Besichtigungen vor Ort
- Unterzeichnung der Reservierung, des Kaufvertrags