ZADAR, SUKOŠAN – Wunderschönes neues Gebäude 200 Meter vom Strand entfernt mit Meerblick! Ein S5
| Registrationsnummer | DN-38406 |
| Art des Angebots | Verkauf |
| Kategorie | Appartements |
| Bezirk | Zadarska |
| Gemeindeteil | Sukošan |
| Preis | 371 344 € |
| Gesamtfläche | 91 m² |
| Wohnfläche (Wohnung) | 91 m² |
| Entfernung vom meer | 200 m |
| Strom | |
| Wasser | |
| Klimaanlage |
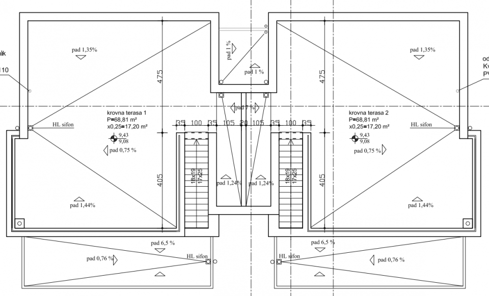
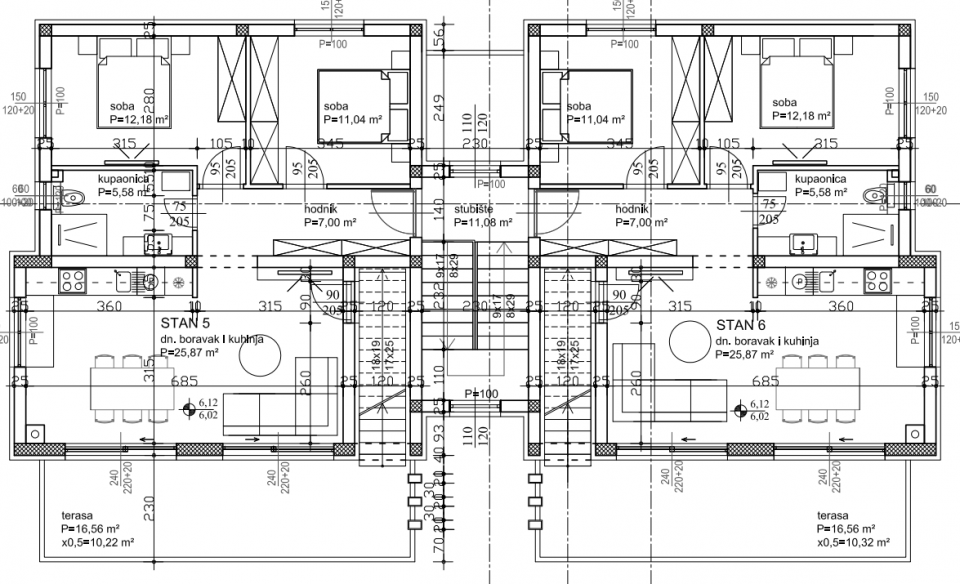
ZADAR, SUKOŠAN – Wunderschönes neues Gebäude 200 Meter vom Strand entfernt mit Meerblick! Und S5. In Sukošan, einem malerischen Küstenort, der für seine schönen Strände und seine hervorragende Verkehrsanbindung bekannt ist, befindet sich ein modernes Wohngebäude mit insgesamt sechs Wohnungen. Bei der Planung der Anlage wurde besonderer Wert auf Bauqualität, Raumfunktionalität und Wohnkomfort gelegt. Jedes Apartment besteht aus zwei geräumigen Schlafzimmern, einem eleganten Badezimmer, einem luftigen Wohnzimmer, einem Esszimmer und einer modern ausgestatteten Küche. Die Wohnungen im Erdgeschoss verfügen zusätzlich über private Gärten, während die Wohnungen im zweiten Stock über exklusive Dachterrassen mit Panoramablick auf das Meer verfügen. Die Wohnungen im Erdgeschoss bieten teilweise Meerblick. Das Gebäude ist nach hohen Standards ausgestattet – Fußbodenheizung in allen Räumen außer den Schlafzimmern, drei Klimaanlagen (im Wohnzimmer und in den Schlafzimmern), Moskitonetze, elektrische Jalousien und thermische Aluminium-Tischlerei. Als Bodenbeläge kommen erstklassige Keramik in den Wohnräumen und hochwertiges Parkett in den Schlafzimmern zum Einsatz. Zu jeder Wohnung gehört ein PKW-Stellplatz, optional kann ein weiterer Stellplatz erworben werden. Die Fertigstellung des Baus ist für Ende 2025 geplant. Sukošan bietet mit seiner langen Küste, dem Yachthafen und allen notwendigen Annehmlichkeiten die ideale Balance zwischen ruhigem Familienleben und der Nähe zum Stadtzentrum. Es ist nur wenige Autominuten von Zadar entfernt, einer historischen Stadt mit reichem kulturellem Erbe und moderner Infrastruktur. Für weitere Informationen und zur Vereinbarung eines Besichtigungstermins kontaktieren Sie uns bitte.
Bei allen unseren Angeboten sind die Preise identisch mit dem Direktkauf bei der Agentur/dem Entwickler in Kroatien, da wir der offizielle Vertreter dieser Agenturen auf dem tschechischen, slowakischen, deutschen und österreichischen Markt sind. Dies gilt ohne zusätzliche Zuschläge für deutschsprachige Dienstleistungen.
Sehr geehrte Kunden, die Besichtigung von Immobilien, die Mitteilung der Lage und andere detaillierte Informationen sind nur mit einem unterzeichneten Vermittlungsvertrag möglich, der die Grundlage für weitere Aktionen wie den Kauf einer Immobilie bildet. Alles steht im Einklang mit dem Gesetz über die Vermittlung beim Kauf von Immobilien. Der Käufer zahlt eine gesetzliche Vermittlungsprovision in Höhe von 3% (+ MwSt.) des vereinbarten Preises, und zwar nur im Falle des Kaufs der Immobilie. Sollte der Kauf nicht zustande kommen, ist der Vertrag für Sie nicht bindend und wird annulliert. Wenn Sie ernsthaft an der Immobilie interessiert sind, senden wir Ihnen den Vertrag auf Anfrage zu.
Wir werden Ihnen innerhalb von 24 Stunden antworten.
Wir bieten nur geprüfte Immobilien an.
Wir garantieren eine hohe Servicequalität.
Wir können Ihnen bei der Vermittlung von Unterkünften während der Besichtigungen helfen.
- Ich habe eine Immobilie aus dem Angebot ausgewählt
- Ich kontaktiere den Makler
- Ich unterschreibe einen Vertretungsvertrag - Details hier! (die Unterzeichnung des Vertrags ist gesetzlich vorgeschrieben)
- Ich richte eine OIB ein - Details hier (die Einrichtung ist gesetzlich vorgeschrieben)
- Besichtigungen vor Ort
- Unterzeichnung der Reservierung, des Kaufvertrags