ZADAR, ZEMUNIK G. – Bauland mit einem Niedrigenergiehausprojekt
| Registrationsnummer | DN-45902 |
| Art des Angebots | Verkauf |
| Kategorie | Bauland |
| Bezirk | Zadarska |
| Gemeindeteil | Zemunik Donji |
| Preis | 93 500 € |
| Preis pro m2 | 95 €/m² |
| Gesamtfläche | 978 m² |
| Strom | |
| Wasser |
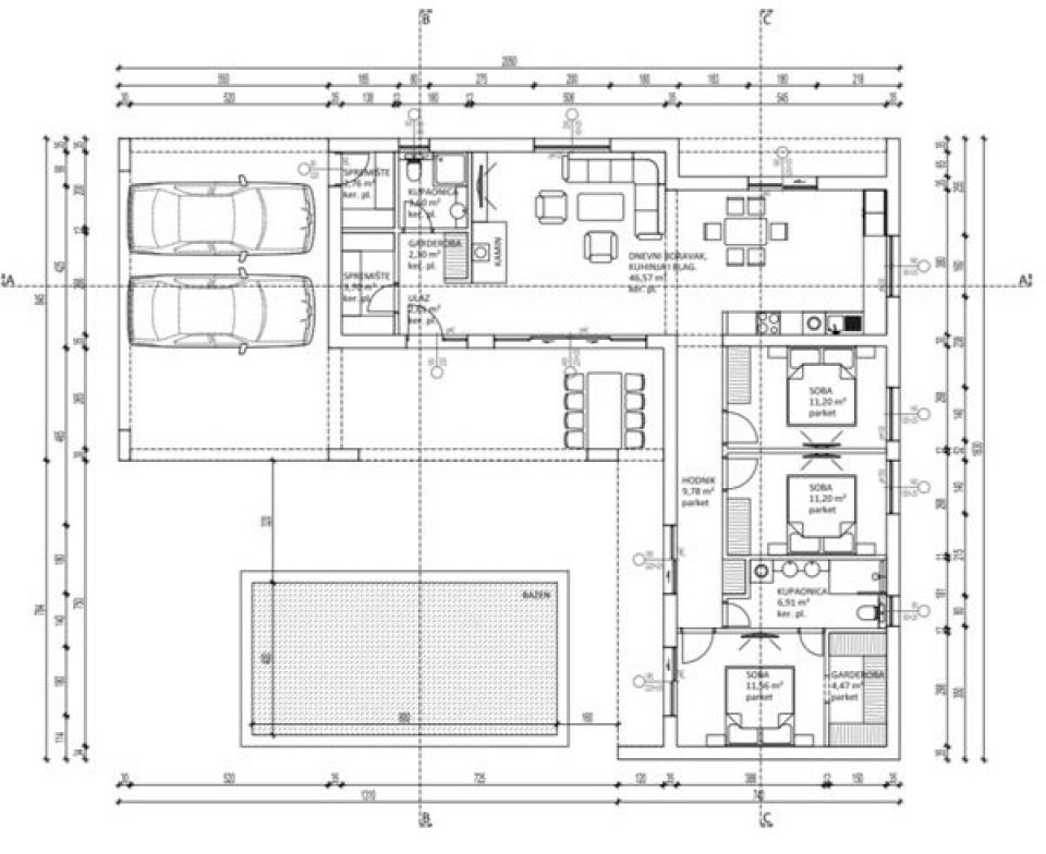
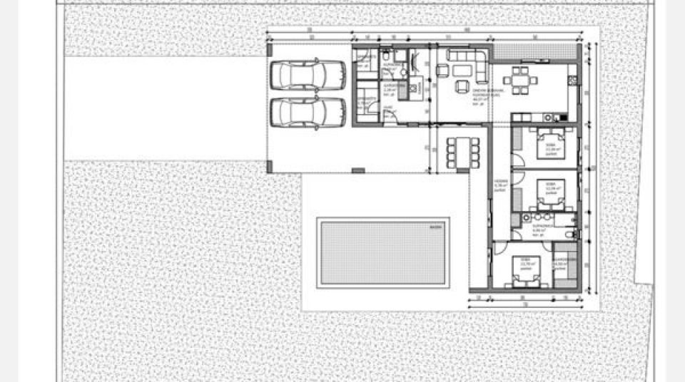
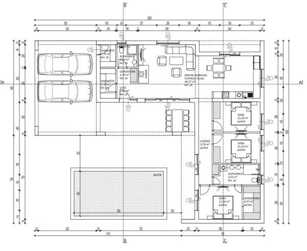
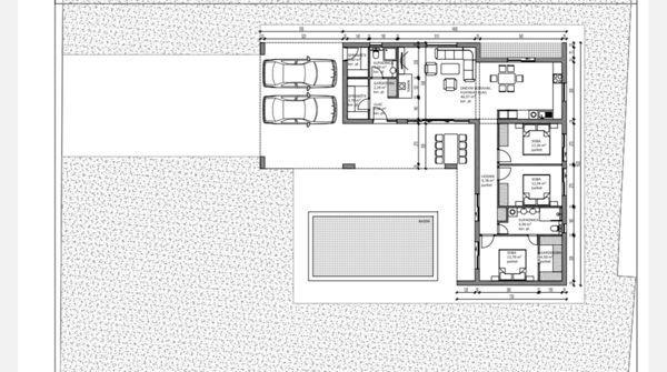
ZADAR, ZEMUNIK G. – Baugrundstück mit Niedrigenergiehausprojekt In der Siedlung Zemunik Gornji, einem ruhigen und immer beliebter werdenden Stadtteil von Zadar, steht ein 978 m² großes Baugrundstück zum Verkauf. Das Grundstück hat eine regelmäßige Form und ist direkt über eine Zufahrtsstraße erreichbar, was eine bequeme An- und Abfahrt sowie eine praktische Bauplanung ermöglicht. Auf dem Grundstück befindet sich ein vollständiges Projekt für ein 155 m² großes, eingeschossiges Fertighaus mit niedrigem Energieverbrauch. Der Bauantrag wurde im September 2025 ordnungsgemäß eingereicht, sodass der Bau unmittelbar nach Erteilung der Genehmigung beginnen kann. Das Grundstück ist baureif und bietet eine hervorragende Gelegenheit für Käufer, die eine Kapitalanlage oder ein eigenes Zuhause in ruhiger Lage und dennoch in der Nähe aller Annehmlichkeiten suchen. Zemunik Gornji bietet Ruhe und Privatsphäre und ist gleichzeitig schnell an das Zentrum von Zadar, den Flughafen und die Hauptverkehrsstraßen angebunden. Dies macht den Standort ideal für ein Familienhaus oder eine langfristige Kapitalanlage.
Bei allen unseren Angeboten sind die Preise identisch mit dem Direktkauf bei der Agentur/dem Entwickler in Kroatien, da wir der offizielle Vertreter dieser Agenturen auf dem tschechischen, slowakischen, deutschen und österreichischen Markt sind. Dies gilt ohne zusätzliche Zuschläge für deutschsprachige Dienstleistungen.
Sehr geehrte Kunden, die Besichtigung von Immobilien, die Mitteilung der Lage und andere detaillierte Informationen sind nur mit einem unterzeichneten Vermittlungsvertrag möglich, der die Grundlage für weitere Aktionen wie den Kauf einer Immobilie bildet. Alles steht im Einklang mit dem Gesetz über die Vermittlung beim Kauf von Immobilien. Der Käufer zahlt eine gesetzliche Vermittlungsprovision in Höhe von 3% (+ MwSt.) des vereinbarten Preises, und zwar nur im Falle des Kaufs der Immobilie. Sollte der Kauf nicht zustande kommen, ist der Vertrag für Sie nicht bindend und wird annulliert. Wenn Sie ernsthaft an der Immobilie interessiert sind, senden wir Ihnen den Vertrag auf Anfrage zu.
Wir werden Ihnen innerhalb von 24 Stunden antworten.
Wir bieten nur geprüfte Immobilien an.
Wir garantieren eine hohe Servicequalität.
Wir können Ihnen bei der Vermittlung von Unterkünften während der Besichtigungen helfen.
- Ich habe eine Immobilie aus dem Angebot ausgewählt
- Ich kontaktiere den Makler
- Ich unterschreibe einen Vertretungsvertrag - Details hier! (die Unterzeichnung des Vertrags ist gesetzlich vorgeschrieben)
- Ich richte eine OIB ein - Details hier (die Einrichtung ist gesetzlich vorgeschrieben)
- Besichtigungen vor Ort
- Unterzeichnung der Reservierung, des Kaufvertrags