ZADAR, ZUKVE – Grundstück für 3 Gebäude, 12 Wohnungen mit Baugenehmigung – 300 m vom Meer entfernt!
| Registrationsnummer | DN-42225 |
| Art des Angebots | Verkauf |
| Kategorie | Bauland |
| Bezirk | Zadarska |
| Gemeindeteil | Vrsi |
| Preis | 519 600 € |
| Preis pro m2 | 300 €/m² |
| Gesamtfläche | 1 732 m² |
| Entfernung vom meer | 300 m |
| Strom | |
| Wasser |
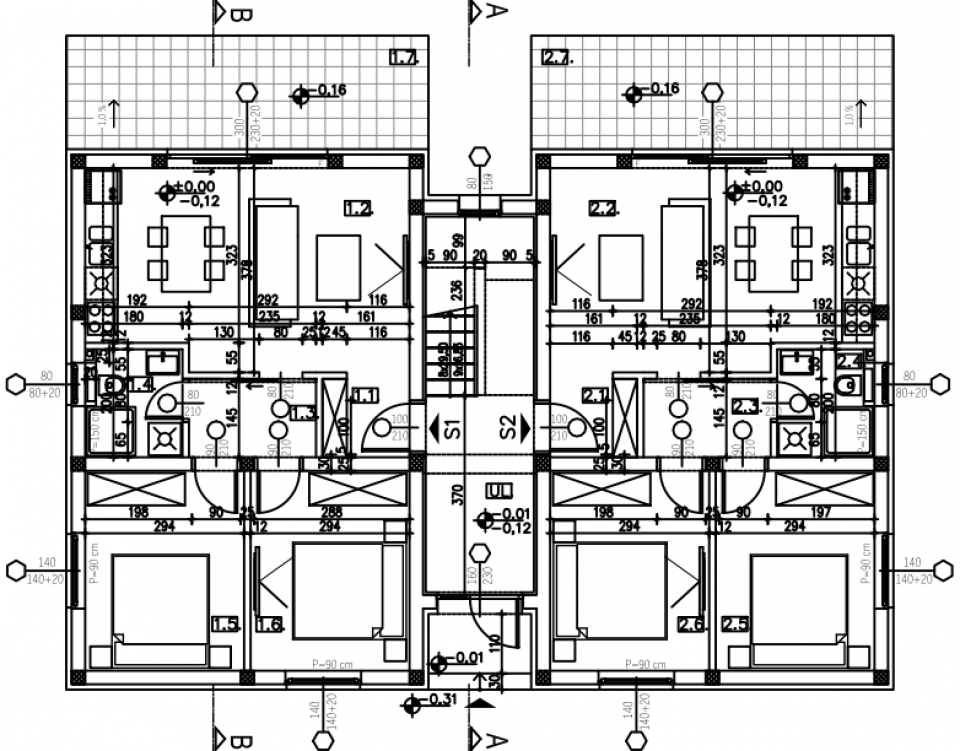
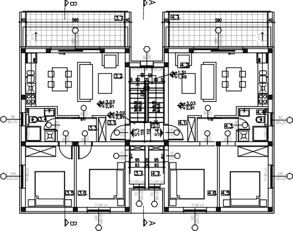
ZADAR, ZUKVE – Grundstück für 3 Gebäude, 12 Wohnungen mit Baugenehmigung – 300 m vom Meer entfernt! Attraktives Baugrundstück mit einer Fläche von 1732 m2 zum Verkauf mit einem abgeschlossenen Projekt für 3 moderne Gebäude mit vier Wohneinheiten, insgesamt 12 Wohnungen und bereits vorliegenden Baugenehmigungen für alle drei Gebäude. Das Grundstück befindet sich in hervorragender Lage – nur 300 Meter vom Meer entfernt oder 5-6 Gehminuten vom Strand entfernt und verfügt über zwei Zufahrtsstraßen. Eine echte Chance für Investoren und Bauherren, die eine sofort umsetzbare und sichere Investition mit schneller Umsetzung und hervorragender Kapitalrendite suchen. Das Grundstück ist Eigentum einer juristischen Person und es wird keine Grundsteuer gezahlt. Das Grundstück befindet sich in einem ruhigen und begehrten Teil von Zukavi, in der Nähe von Vrsi und dem historischen Nin – Reiseziele, die dank ihrer natürlichen Schönheit, des sauberen Meeres und des hervorragenden touristischen Potenzials zunehmend an Wert gewinnen. Die Stadt Zadar mit ihrem reichhaltigen Angebot an Einrichtungen, dem Flughafen und dem ganzjährigen Verkehr ist nur 20 Autominuten entfernt. Dies ist eine hervorragende Gelegenheit für alle, die sofort mit dem Bau beginnen möchten, ohne auf Genehmigungen warten zu müssen. Kontaktieren Sie uns für weitere Informationen und eine persönliche Besichtigung!
Bei allen unseren Angeboten sind die Preise identisch mit dem Direktkauf bei der Agentur/dem Entwickler in Kroatien, da wir der offizielle Vertreter dieser Agenturen auf dem tschechischen, slowakischen, deutschen und österreichischen Markt sind. Dies gilt ohne zusätzliche Zuschläge für deutschsprachige Dienstleistungen.
Sehr geehrte Kunden, die Besichtigung von Immobilien, die Mitteilung der Lage und andere detaillierte Informationen sind nur mit einem unterzeichneten Vermittlungsvertrag möglich, der die Grundlage für weitere Aktionen wie den Kauf einer Immobilie bildet. Alles steht im Einklang mit dem Gesetz über die Vermittlung beim Kauf von Immobilien. Der Käufer zahlt eine gesetzliche Vermittlungsprovision in Höhe von 3% (+ MwSt.) des vereinbarten Preises, und zwar nur im Falle des Kaufs der Immobilie. Sollte der Kauf nicht zustande kommen, ist der Vertrag für Sie nicht bindend und wird annulliert. Wenn Sie ernsthaft an der Immobilie interessiert sind, senden wir Ihnen den Vertrag auf Anfrage zu.
Wir werden Ihnen innerhalb von 24 Stunden antworten.
Wir bieten nur geprüfte Immobilien an.
Wir garantieren eine hohe Servicequalität.
Wir können Ihnen bei der Vermittlung von Unterkünften während der Besichtigungen helfen.
- Ich habe eine Immobilie aus dem Angebot ausgewählt
- Ich kontaktiere den Makler
- Ich unterschreibe einen Vertretungsvertrag - Details hier! (die Unterzeichnung des Vertrags ist gesetzlich vorgeschrieben)
- Ich richte eine OIB ein - Details hier (die Einrichtung ist gesetzlich vorgeschrieben)
- Besichtigungen vor Ort
- Unterzeichnung der Reservierung, des Kaufvertrags