ZAGREB, VELIKA GORICA - Luxus-Penthouse in einem neuen Gebäude!
| Registrationsnummer | DN-39019 |
| Art des Angebots | Verkauf |
| Kategorie | Appartements |
| Bezirk | Zagrebačka |
| Gemeindeteil | Velika Gorica |
| Preis | 630 000 € |
| Gesamtfläche | 143 m² |
| Wohnfläche (Wohnung) | 143 m² |
| Strom | |
| Wasser | |
| Abfall | |
| Klimaanlage | |
| Heizung | ano |
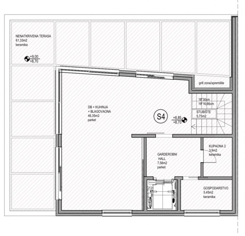
ZAGREB, VELIKA GORICA - Luxus-Penthouse in einem neuen Gebäude! Zum Verkauf steht eine großzügige Penthousewohnung mit der Bezeichnung S4 in einem Neubau, gelegen im 2. Obergeschoss und einem Hochparterre, mit einer Gesamtnettonutzfläche von 142,43 m² (Grundfläche 195,28 m²). Die Wohnung besteht aus einem Wohnzimmer mit Küche und Esszimmer, Flur, Garderobenflur, zwei Bädern, drei Schlafzimmern, Hauswirtschaftsraum, Innentreppe, Loggia, Grill-/Abstellraum, nicht überdachter Terrasse und dem dazugehörigen Abstellraum S4 im Erdgeschoss. Zur Wohnung gehört außerdem ein Außenstellplatz mit der Bezeichnung PM4 im Hof (netto 2,50 m² / Etage 12,50 m²), sowie ein Tiefgaragenstellplatz G4 im Erdgeschoss (netto 10,38 m² / Etage 17,30 m²). Die Wohnung verfügt über einen direkten Zugang per Aufzug, der direkt in die Wohnung führt, was das Gefühl von Privatsphäre und Luxus noch verstärkt. Es befindet sich in hervorragender Lage in der Nähe von Schulen, Kindergärten, Geschäften, öffentlichen Verkehrsmitteln und allen wichtigen Annehmlichkeiten. Hochwertiger Neubau, hervorragende Raumaufteilung, privater Aufzugseingang und große Terrasse machen dieses Penthouse ideal für das Familienleben oder als Kapitalanlage.
Bei allen unseren Angeboten sind die Preise identisch mit dem Direktkauf bei der Agentur/dem Entwickler in Kroatien, da wir der offizielle Vertreter dieser Agenturen auf dem tschechischen, slowakischen, deutschen und österreichischen Markt sind. Dies gilt ohne zusätzliche Zuschläge für deutschsprachige Dienstleistungen.
Sehr geehrte Kunden, die Besichtigung von Immobilien, die Mitteilung der Lage und andere detaillierte Informationen sind nur mit einem unterzeichneten Vermittlungsvertrag möglich, der die Grundlage für weitere Aktionen wie den Kauf einer Immobilie bildet. Alles steht im Einklang mit dem Gesetz über die Vermittlung beim Kauf von Immobilien. Der Käufer zahlt eine gesetzliche Vermittlungsprovision in Höhe von 3% (+ MwSt.) des vereinbarten Preises, und zwar nur im Falle des Kaufs der Immobilie. Sollte der Kauf nicht zustande kommen, ist der Vertrag für Sie nicht bindend und wird annulliert. Wenn Sie ernsthaft an der Immobilie interessiert sind, senden wir Ihnen den Vertrag auf Anfrage zu.
Wir werden Ihnen innerhalb von 24 Stunden antworten.
Wir bieten nur geprüfte Immobilien an.
Wir garantieren eine hohe Servicequalität.
Wir können Ihnen bei der Vermittlung von Unterkünften während der Besichtigungen helfen.
- Ich habe eine Immobilie aus dem Angebot ausgewählt
- Ich kontaktiere den Makler
- Ich unterschreibe einen Vertretungsvertrag - Details hier! (die Unterzeichnung des Vertrags ist gesetzlich vorgeschrieben)
- Ich richte eine OIB ein - Details hier (die Einrichtung ist gesetzlich vorgeschrieben)
- Besichtigungen vor Ort
- Unterzeichnung der Reservierung, des Kaufvertrags