ZAGREB, ZENTRUM – Maisonette-Wohnung mit drei Wohnungen und hervorragendem Einkommen!
| Registrationsnummer | DN-40757 |
| Art des Angebots | Verkauf |
| Kategorie | Appartements |
| Bezirk | Grad Zagreb |
| Gemeindeteil | Gornji Grad - Medveščak |
| Preis | 510 000 € |
| Gesamtfläche | 137 m² |
| Wohnfläche (Wohnung) | 137 m² |
| Strom | |
| Wasser | |
| Abfall | |
| Klimaanlage | |
| Heizung | ano |
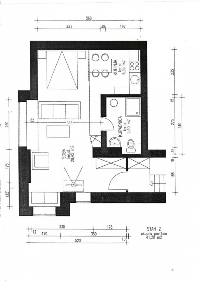
ZAGREB, ZENTRUM – Maisonette-Wohnung mit drei Wohneinheiten und hervorragendem Einkommen! Zum Verkauf steht eine wunderschöne Maisonette-Wohnung im Zentrum von Zagreb, nur zehn Gehminuten vom Ban-Jelačić-Platz entfernt. Die Wohnung ist derzeit in drei komplett separate und modern eingerichtete Wohnungen aufgeteilt, die tageweise vermietet werden. Es handelt sich um ein etabliertes und stabiles Unternehmen, das seit 2018 erfolgreich tätig ist und hervorragende Jahreseinnahmen erwirtschaftet. Die Wohnung befindet sich im dritten Stock und im Dachgeschoss eines Wohngebäudes. Im Jahr 2025 wurde die strukturelle Renovierung erfolgreich abgeschlossen, wodurch das Gebäude zusätzlich erdbebensicher gemacht wurde, was eine große Sicherheit und einen langfristigen Investitionsvorteil darstellt. Im dritten Stock befinden sich zwei Wohnungen. Die erste Wohnung hat 28,32 m² und besteht aus einem Eingangsbereich, einer Küche mit Wohnzimmer, einem Schlafzimmer und einem Badezimmer. Die zweite Wohnung auf derselben Etage hat 67,68 m² und umfasst einen Eingangsbereich, eine Küche mit Wohnzimmer, ein separates Schlafzimmer und ein Badezimmer. Im Dachgeschoss befindet sich eine dritte Wohnung mit 41,20 m², bestehend aus Eingangsbereich, Küche mit Wohnzimmer, Schlafzimmer und Badezimmer. Alle Wohnungen sind modern eingerichtet, funktional, bieten ein angenehmes Ambiente und werden regelmäßig gewartet, was eine hohe Auslastung und hervorragende Gästebewertungen gewährleistet. Dank der attraktiven Lage, der hochwertigen Ausstattung und des langjährigen erfolgreichen Geschäftsbetriebs bietet diese Immobilie eine äußerst zuverlässige Einnahmequelle. Zur Wohnung gehört außerdem ein 12 m² großer Abstellraum im Keller des Gebäudes, der die Funktionalität zusätzlich erhöht. Die Lage im Zentrum von Zagreb gewährleistet die Nähe zu allen wichtigen Einrichtungen wie Geschäften, Restaurants, Cafés, Kultureinrichtungen, Museen und öffentlichen Verkehrsmitteln. Gerade aufgrund dieser hervorragenden Lage, der Qualität und der Flexibilität der Räumlichkeiten eignet sich diese Immobilie ideal sowohl für die Weitervermietung als auch für die Eigennutzung oder eine Kombination aus beidem. Diese Immobilie bietet eine seltene Gelegenheit für eine sichere und rentable Investition im Zentrum von Zagreb mit einem bereits entwickelten Geschäft und hervorragendem langfristigen Potenzial.
Bei allen unseren Angeboten sind die Preise identisch mit dem Direktkauf bei der Agentur/dem Entwickler in Kroatien, da wir der offizielle Vertreter dieser Agenturen auf dem tschechischen, slowakischen, deutschen und österreichischen Markt sind. Dies gilt ohne zusätzliche Zuschläge für deutschsprachige Dienstleistungen.
Sehr geehrte Kunden, die Besichtigung von Immobilien, die Mitteilung der Lage und andere detaillierte Informationen sind nur mit einem unterzeichneten Vermittlungsvertrag möglich, der die Grundlage für weitere Aktionen wie den Kauf einer Immobilie bildet. Alles steht im Einklang mit dem Gesetz über die Vermittlung beim Kauf von Immobilien. Der Käufer zahlt eine gesetzliche Vermittlungsprovision in Höhe von 3% (+ MwSt.) des vereinbarten Preises, und zwar nur im Falle des Kaufs der Immobilie. Sollte der Kauf nicht zustande kommen, ist der Vertrag für Sie nicht bindend und wird annulliert. Wenn Sie ernsthaft an der Immobilie interessiert sind, senden wir Ihnen den Vertrag auf Anfrage zu.
Wir werden Ihnen innerhalb von 24 Stunden antworten.
Wir bieten nur geprüfte Immobilien an.
Wir garantieren eine hohe Servicequalität.
Wir können Ihnen bei der Vermittlung von Unterkünften während der Besichtigungen helfen.
- Ich habe eine Immobilie aus dem Angebot ausgewählt
- Ich kontaktiere den Makler
- Ich unterschreibe einen Vertretungsvertrag - Details hier! (die Unterzeichnung des Vertrags ist gesetzlich vorgeschrieben)
- Ich richte eine OIB ein - Details hier (die Einrichtung ist gesetzlich vorgeschrieben)
- Besichtigungen vor Ort
- Unterzeichnung der Reservierung, des Kaufvertrags