INSEL KRK, BAŠKA (Umgebung) - 2-Zimmer-Wohnung in einem neuen Gebäude mit Terrasse und 2 Parkplätzen
| Registrationsnummer | DN-41413 |
| Art des Angebots | Verkauf |
| Kategorie | Appartements |
| Bezirk | Primorsko-goranska |
| Gemeindeteil | Baška |
| Preis | 295 000 € |
| Gesamtfläche | 61 m² |
| Wohnfläche (Wohnung) | 61 m² |
| Entfernung vom meer | 4 000 m |
| Strom | |
| Klimaanlage | |
| Heizung | ano |
| Energieintensität | X - Nicht ausgestellt |
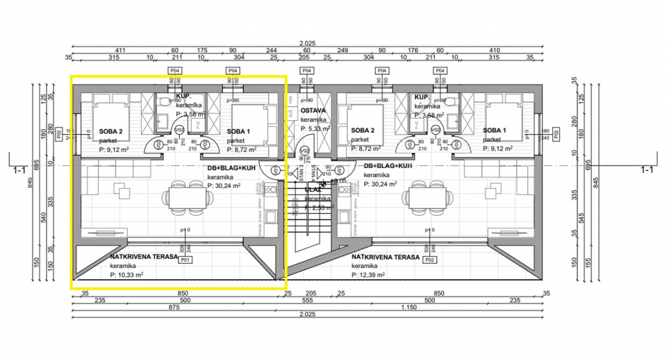
INSEL KRK, BAŠKA (Umgebung) - 2-Zimmer-Wohnung in einem neuen Gebäude mit Terrasse und 2 Parkplätzen In der Nähe von Baška, 4 km vom Meer entfernt, steht eine Wohnung in einem neuen Gebäude zum Verkauf, modern gestaltet und gebaut auf hohem Niveau. Der Neubau besteht aus vier Wohneinheiten und liegt am Rande der Grünzone, umgeben von Olivenhainen. Die Wohnung befindet sich im 1. Stock des Gebäudes, hat eine Wohnfläche von 61,99 m2 und besteht aus einer „Open-Space“-Küche mit Esszimmer und Wohnzimmer, zwei Schlafzimmern und einem Badezimmer. Vom Wohnzimmer aus gibt es eine überdachte Terrasse von 10,33 m2. Die Wohnung ist nach Süden ausgerichtet und verfügt über zwei Parkplätze im Gemeinschaftsgarten. Die Zimmerei ist aus Aluminium, mit elektrischen Jalousienhebern, die Eingangstür ist einbruchhemmend. Die Klimaanlagen werden von Daikin sein und die Außengeräte werden versteckt sein. Beim Bau wurden äußerst hochwertige Materialien, moderne Sanitäranlagen, Keramik und andere Beläge verwendet. Der Käufer ist von der Zahlung der Immobilienumsatzsteuer befreit.
Bei allen unseren Angeboten sind die Preise identisch mit dem Direktkauf bei der Agentur/dem Entwickler in Kroatien, da wir der offizielle Vertreter dieser Agenturen auf dem tschechischen, slowakischen, deutschen und österreichischen Markt sind. Dies gilt ohne zusätzliche Zuschläge für deutschsprachige Dienstleistungen.
Sehr geehrte Kunden, die Besichtigung von Immobilien, die Mitteilung der Lage und andere detaillierte Informationen sind nur mit einem unterzeichneten Vermittlungsvertrag möglich, der die Grundlage für weitere Aktionen wie den Kauf einer Immobilie bildet. Alles steht im Einklang mit dem Gesetz über die Vermittlung beim Kauf von Immobilien. Der Käufer zahlt eine gesetzliche Vermittlungsprovision in Höhe von 3% (+ MwSt.) des vereinbarten Preises, und zwar nur im Falle des Kaufs der Immobilie. Sollte der Kauf nicht zustande kommen, ist der Vertrag für Sie nicht bindend und wird annulliert. Wenn Sie ernsthaft an der Immobilie interessiert sind, senden wir Ihnen den Vertrag auf Anfrage zu.
Wir werden Ihnen innerhalb von 24 Stunden antworten.
Wir bieten nur geprüfte Immobilien an.
Wir garantieren eine hohe Servicequalität.
Wir können Ihnen bei der Vermittlung von Unterkünften während der Besichtigungen helfen.
- Ich habe eine Immobilie aus dem Angebot ausgewählt
- Ich kontaktiere den Makler
- Ich unterschreibe einen Vertretungsvertrag - Details hier! (die Unterzeichnung des Vertrags ist gesetzlich vorgeschrieben)
- Ich richte eine OIB ein - Details hier (die Einrichtung ist gesetzlich vorgeschrieben)
- Besichtigungen vor Ort
- Unterzeichnung der Reservierung, des Kaufvertrags