INSEL KRK, STADT KRK - NEUES GEBÄUDE - Apartment mit Meerblick
| Registrationsnummer | DN-28757 |
| Art des Angebots | Verkauf |
| Kategorie | Appartements |
| Bezirk | Primorsko-goranska |
| Gemeindeteil | Krk |
| Preis | 425 000 € |
| Gesamtfläche | 74 m² |
| Wohnfläche (Wohnung) | 74 m² |
| Entfernung vom meer | 600 m |
| Strom | |
| Abfall | |
| Klimaanlage | |
| Energieintensität | A - extrem wirtschaftlich |
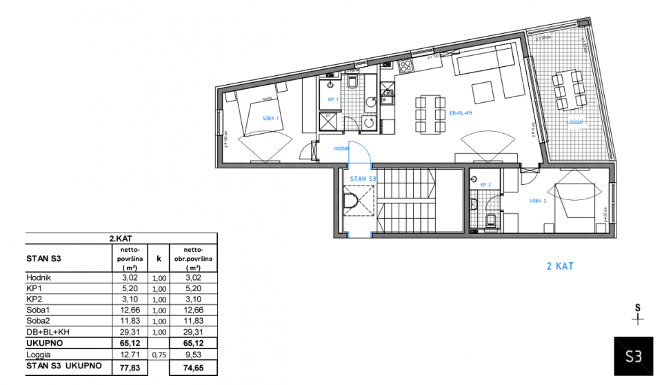
INSEL KRK, STADT KRK - NEU GEBAUT - Apartment mit Meerblick NEU GEBAUT IN DER STADT KRK, 400 Meter vom Zentrum und 600 Meter von schönen Stränden entfernt. In toller Lage, mit vier Wohneinheiten. Die Wohnung im zweiten Stock von 74,65 m2 besteht aus einer Eingangshalle, einem Schlafzimmer, einem Badezimmer, einem Hauptschlafzimmer mit eigenem Bad, einer Küche mit Esszimmer und einem Wohnzimmer mit Zugang zur Loggia von 9,53 m2, mit herrlichem Blick auf das Meer und die Altstadt von Krk. Neubau nach höchsten Energieeffizienzstandards gebaut, mit Energieausweis A++. Zu den hochwertigen Materialien gehören eine Stahlbetonkonstruktion, eine Fassade aus dem WDVS-System und hochwertige PVC-Zimmerei mit dreischichtigem Low-E-Glas, mit ALUMINIUM-Jalousien an elektrischen Aufzügen und Moskitonetzen. Für Behaglichkeit sorgt eine Fußbodenheizung in allen Räumen, unterstützt durch eine Wärmepumpe mit Innen- und Außengeräten, während das Multi-Split-System für Kühlung in jedem Raum sorgt. Hochwertige Boden- und Wandbeläge sowie hochwertige Innenschreinerei- und Sanitärartikel tragen zur Lebensqualität im Wohnraum bei. Gegen Aufpreis steht Ihnen ein Parkplatz zur Verfügung, es besteht die Möglichkeit, einen zusätzlichen Parkplatz oder eine Garage zu erwerben. Der Baubeginn ist für Herbst 2024 geplant, die voraussichtliche Fertigstellung im Sommer/Herbst 2025. Alle wichtigen Versorgungsanschlüsse sind vorhanden, darunter Stadtwasser, Abwasser, Strom und Telefon. Der Käufer zahlt keine Immobilienumsatzsteuer. ***
Bei allen unseren Angeboten sind die Preise identisch mit dem Direktkauf bei der Agentur/dem Entwickler in Kroatien, da wir der offizielle Vertreter dieser Agenturen auf dem tschechischen, slowakischen, deutschen und österreichischen Markt sind. Dies gilt ohne zusätzliche Zuschläge für deutschsprachige Dienstleistungen.
Sehr geehrte Kunden, die Besichtigung von Immobilien, die Mitteilung der Lage und andere detaillierte Informationen sind nur mit einem unterzeichneten Vermittlungsvertrag möglich, der die Grundlage für weitere Aktionen wie den Kauf einer Immobilie bildet. Alles steht im Einklang mit dem Gesetz über die Vermittlung beim Kauf von Immobilien. Der Käufer zahlt eine gesetzliche Vermittlungsprovision in Höhe von 3% (+ MwSt.) des vereinbarten Preises, und zwar nur im Falle des Kaufs der Immobilie. Sollte der Kauf nicht zustande kommen, ist der Vertrag für Sie nicht bindend und wird annulliert. Wenn Sie ernsthaft an der Immobilie interessiert sind, senden wir Ihnen den Vertrag auf Anfrage zu.
Wir werden Ihnen innerhalb von 24 Stunden antworten.
Wir bieten nur geprüfte Immobilien an.
Wir garantieren eine hohe Servicequalität.
Wir können Ihnen bei der Vermittlung von Unterkünften während der Besichtigungen helfen.
- Ich habe eine Immobilie aus dem Angebot ausgewählt
- Ich kontaktiere den Makler
- Ich unterschreibe einen Vertretungsvertrag - Details hier! (die Unterzeichnung des Vertrags ist gesetzlich vorgeschrieben)
- Ich richte eine OIB ein - Details hier (die Einrichtung ist gesetzlich vorgeschrieben)
- Besichtigungen vor Ort
- Unterzeichnung der Reservierung, des Kaufvertrags