OPATIJA, IKA – Maisonette-Wohnung in einem luxuriösen Neubau in Meeresnähe
| Registrationsnummer | DN-42591 |
| Art des Angebots | Verkauf |
| Kategorie | Appartements |
| Bezirk | Primorsko-goranska |
| Gemeindeteil | Opatija - Okolica |
| Preis | 500 000 € |
| Gesamtfläche | 131 m² |
| Wohnfläche (Wohnung) | 131 m² |
| Bebaute Fläche und Hof | 92 m² |
| Gesamt bebaut fläche | 92 m² |
| Entfernung vom meer | 350 m |
| Strom | |
| Abfall | |
| Klimaanlage | |
| Energieintensität | X - Nicht ausgestellt |
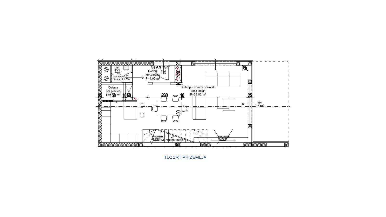
OPATIJA, IKA – Eine zweistöckige Wohnung in einem luxuriösen Neubau mit Meerblick – moderner Komfort und privater Terrasse In einer ruhigen, grünen Gegend oberhalb von Ika, nur wenige Gehminuten vom Meer entfernt, entsteht ein modernes Wohngebäude mit insgesamt drei exklusiven Wohneinheiten. Das Gebäude wurde sorgfältig entworfen, um jeder Wohnung maximale Privatsphäre, einen offenen Meerblick und eine funktionale Aufteilung zu bieten, die zu einem modernen Lebensstil passt. Das Angebot umfasst eine geräumige zweistöckige Wohnung, die sich über das Erdgeschoss und den ersten Stock erstreckt, einschließlich Außenbereichen und zwei privaten Parkplätzen. Aufteilung: Erdgeschoss: geräumige Terrasse, teilweise überdacht, Wohnzimmer mit Küche und Esszimmer, Flur, Toilette und Abstellraum. Erste Etage: drei Schlafzimmer, zwei Badezimmer, Flur und ein überdachter Balkon (13,51 m²) mit Meerblick. In der ersten Etage ist auch Platz für eine private Sauna vorgesehen, was den Komfort weiter erhöht. Große Terrassen auf beiden Etagen erweitern den Wohnraum zusätzlich, und die Möglichkeit, eine Sommerküche und einen Aufstellpool zu installieren, ist besonders interessant, für die alle Installationen bereits vorbereitet sind – perfekt für diejenigen, die ihre eigene private Oase im Freien zum Entspannen und für geselliges Beisammensein schaffen möchten. Technische Ausstattung und Anpassungsmöglichkeiten: Fußbodenheizung in der gesamten Wohnung (außer in den Schlafzimmern, in denen Parkett vorgesehen ist) Wärmepumpe und Fan-Coil-System zum Heizen und Kühlen Multisplit-Klimaanlagen in allen Räumen Käufer können in den frühen Phasen des Baus die Veredelungsmaterialien (Keramik, Parkett, Sanitärkeramik) innerhalb eines festgelegten Budgets auswählen, mit der Möglichkeit, für höhere Klassen einen Aufpreis zu zahlen. Die Fertigstellung der Arbeiten ist für Juni 2026 geplant. Weitere Vorteile: Zwei private Parkplätze vor dem Gebäude im Preis inbegriffen. Hervorragende Verkehrsanbindung: ACI Marina Ičići und die Strände sind nur wenige Autominuten entfernt, und das Zentrum von Opatija kann in etwa 10 Minuten erreicht werden. Moderner Neubau von höchster Qualität in ruhiger Umgebung mit Panoramablick auf das Meer – eine Rarität in diesem Teil des Marktes. Diese Immobilie stellt die perfekte Kombination aus einem Familienhaus zum ganzjährigen Wohnen, einer Ferienvilla oder einer Investition in die touristische Vermietung in einem der begehrtesten Teile der Riviera von Opatija dar. Für alle weiteren Informationen, Grundrisse und die Möglichkeit einer Besichtigung – kontaktieren Sie uns vertrauensvoll.
Bei allen unseren Angeboten sind die Preise identisch mit dem Direktkauf bei der Agentur/dem Entwickler in Kroatien, da wir der offizielle Vertreter dieser Agenturen auf dem tschechischen, slowakischen, deutschen und österreichischen Markt sind. Dies gilt ohne zusätzliche Zuschläge für deutschsprachige Dienstleistungen.
Sehr geehrte Kunden, die Besichtigung von Immobilien, die Mitteilung der Lage und andere detaillierte Informationen sind nur mit einem unterzeichneten Vermittlungsvertrag möglich, der die Grundlage für weitere Aktionen wie den Kauf einer Immobilie bildet. Alles steht im Einklang mit dem Gesetz über die Vermittlung beim Kauf von Immobilien. Der Käufer zahlt eine gesetzliche Vermittlungsprovision in Höhe von 3% (+ MwSt.) des vereinbarten Preises, und zwar nur im Falle des Kaufs der Immobilie. Sollte der Kauf nicht zustande kommen, ist der Vertrag für Sie nicht bindend und wird annulliert. Wenn Sie ernsthaft an der Immobilie interessiert sind, senden wir Ihnen den Vertrag auf Anfrage zu.
Wir werden Ihnen innerhalb von 24 Stunden antworten.
Wir bieten nur geprüfte Immobilien an.
Wir garantieren eine hohe Servicequalität.
Wir können Ihnen bei der Vermittlung von Unterkünften während der Besichtigungen helfen.
- Ich habe eine Immobilie aus dem Angebot ausgewählt
- Ich kontaktiere den Makler
- Ich unterschreibe einen Vertretungsvertrag - Details hier! (die Unterzeichnung des Vertrags ist gesetzlich vorgeschrieben)
- Ich richte eine OIB ein - Details hier (die Einrichtung ist gesetzlich vorgeschrieben)
- Besichtigungen vor Ort
- Unterzeichnung der Reservierung, des Kaufvertrags