ISTRIEN, KRNICA – Baugrundstück 19147 m² mit wunderschönem Meerblick für ca. 10 Villen mit Swimmingpool
| Registrationsnummer | DN-40347 |
| Art des Angebots | Verkauf |
| Kategorie | Bauland |
| Bezirk | Istarska |
| Gemeindeteil | Marčana |
| Preis | 1 961 800 € |
| Preis pro m2 | 102 €/m² |
| Gesamtfläche | 19 147 m² |
| Strom | |
| Wasser |
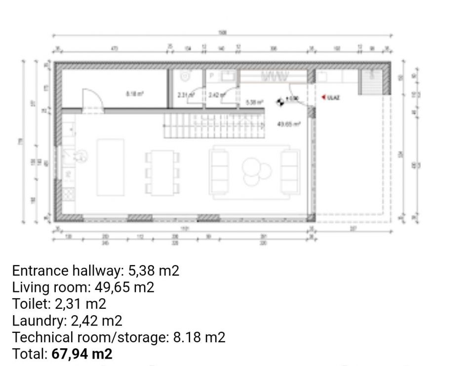
ISTRIEN, KRNICA – Baugrundstück 19147 m² mit wunderschönem Meerblick für ca. 10 Villen mit Swimmingpool Das Baugrundstück ist 200 m Luftlinie vom Meer entfernt, bietet einen offenen Panoramablick auf das Meer und ist nach Süden ausgerichtet. Das Grundstück ist ca. 10000 m² groß und befindet sich in der Bauzone, während die restlichen ca. 9000 m² in der Grünzone liegen (nicht bebaubar – kann ein Innenhof, Garten, Obstgarten, Tennisplatz, Swimmingpool o. Ä. sein). Für den baulichen Teil des Grundstücks liegt ein Vorentwurf für den Bau von 10 Villen mit Swimmingpool vor. Im Jahr 2024 haben die Eigentümer erhebliche Anstrengungen unternommen, um die Planungsphase zu verbessern und jedes Detail sorgfältig zu berücksichtigen, um signifikante Verbesserungen zu gewährleisten. Mehrere Iterationen der Entwicklung wurden analysiert, und jede Version enthält wertvolle Verbesserungen. Obwohl der Prozess umfangreich erscheinen mag, glauben wir, dass diese Investition von Zeit und Energie einen erheblichen Mehrwert schafft. Dies ist ein besonderes Projekt an einem der schönsten Standorte Istriens und wir haben uns seiner Entwicklung mit größter Sorgfalt und Liebe zum Detail verschrieben. Die Priorität des Eigentümers ist nicht Geschwindigkeit, sondern die Schaffung eines Projekts, das schön, nachhaltig, wertvoll, kostengünstig und funktional ist. Angesichts dieser Ziele war es wichtig, viele Optionen zu prüfen und Fachwissen aus verschiedenen Bereichen einzubeziehen, um das endgültige Design zu gestalten. Dieser durchdachte, multidisziplinäre Ansatz stellt sicher, dass wir sowohl für den Standort als auch für die Gemeinde ein ausgewogenes und wirkungsvolles Ergebnis erzielen. MASTERPLAN UND POSITIONIERUNG DER VILLEN: MAXIMIERUNG DER GÄSTEKAPAZITÄT: Der detaillierte Stadtplan (UPU) sieht die Unterbringung von 80 Gästen vor. Jede Villa ist für 6 Gäste geplant, insgesamt also 66 Gäste in 11 Villen. Zusätzlich können laut Plan 7 Villen 2 weitere Gäste beherbergen (7 x 2 = 14 Gäste), wodurch sich die Gesamtkapazität auf 80 Gäste erhöht. Tatsächlich kann jede Villa bis zu 8 Gäste beherbergen, was bedeutet, dass das Projekt verteilt auf alle Villen bis zu 88 Gäste beherbergen kann (8 x 11 = 88). AUSSICHT MAXIMAL GENIESSEN: Die Villen liegen auf verschiedenen Ebenen, sodass alle eine schöne Aussicht haben. Außerdem folgen die Villen so weit wie möglich dem natürlichen Gelände, was Baukosten spart. Große Fenster sorgen dafür, dass die schöne Aussicht auf die umgebende Landschaft in den Wohnraum integriert wird und so zu einem bedeutenden Teil des Gesamterlebnisses wird. DESIGN FÜR WIRTSCHAFTLICHKEIT OPTIMIEREN: Das Design der Villen wird so weit wie möglich an das vorhandene Gelände und die Straßenführung angepasst, um Baukosten und Komplexität zu reduzieren. Das Projekt umfasst zwei Arten von Villen, die auf das Straßendesign abgestimmt sind und Bauweise und Funktionalität priorisieren. EINHALTUNG DER ERFORDERLICHEN ABSTÄNDE: Ein Mindestabstand von 3 Metern zwischen den Villen und 4 Metern von der Straße entspricht den städtebaulichen Vorschriften. Wichtig: Dies erleichtert eine mögliche zukünftige Unterteilung in separate Grundstücke (falls wir uns entscheiden, die Villen in Zukunft zu verkaufen), da die Planung die festgelegten Abstände respektiert. EFFIZIENTE RAUM- UND AUSSTATTUNGSNUTZUNG: Die Villen sind auf eine optimale Raumausnutzung ausgelegt (es gibt keine sehr großen Villen mit ungenutztem Raum) und bieten gleichzeitig eine Reihe von Ausstattungsmerkmalen, darunter ein Bistro mit Meerblick, private Pools, Essbereich im Freien, Küche und Außendusche – für ein angenehmes Wohnerlebnis. EFFIZIENTE LANDSCHAFTSGESTALTUNG AM HANG: Die Landschaftsgestaltungslösung priorisiert Erdarbeiten mit Gelände und Pflanzen, reduziert strukturelle Stützmauern, schafft eine organischere Integration in die Umgebung und reduziert die Baukomplexität. An den Hängen gepflanzte Pflanzen sorgen für ein unglaubliches visuelles Erlebnis. STRASSENPLANUNG: Ein Schlüsselelement des Projekts ist die Straße. Ihre Planung wurde unter Berücksichtigung mehrerer Ziele sorgfältig durchdacht: EINHALTUNG VON VORSCHRIFTEN: Die Straße wird gemäß allen relevanten Vorschriften geplant, was die Wahrscheinlichkeit einer künftigen Übernahme durch die Gemeinde erhöht (wie bei Laguna Marina), was dem Projekt langfristig zugutekommen könnte. EINFACHER ZUGANG: Komfort und einfache Navigation auf der Straße sind entscheidend. Die Straßenplanung priorisiert den ungehinderten Zugang zu den Villen. Dies verbessert das Gesamterlebnis für Bewohner und Gäste erheblich. INTEGRATION IN DAS GELÄNDE: Die Straßenführung folgt den natürlichen Erhebungen des Geländes, um den Bedarf an umfangreichen Erdarbeiten zu reduzieren. Dies senkt die Kosten und bewahrt die natürliche Schönheit des Standorts. Zugang zu künftiger Bebauung (landwirtschaftliche Flächen) Die endgültige Straßenplanung ist im Vergleich zu den ursprünglichen Versionen vollständig in das Gelände integriert, was den Nutzerkomfort und die allgemeine Ästhetik des Projekts verbessert. WICHTIG: Sie garantiert auch den Zugang zu Grundstücken, die künftig bebaut werden könnten. Das Gelände befindet sich auf einem Hügel. Das Grundstück befindet sich in ruhiger Lage direkt an der Straße. Alle Anschlüsse sind vorhanden. Das Grundstück ist sauber und ordentlich. Das Grundstück ist geräumt und bebaubar. Ein zukünftiges Haus auf diesem Grundstück bietet bereits vom Erdgeschoss aus einen Panoramablick auf das Meer, die Bucht und die Inseln! Von hier aus erreichen Sie Meer und Strand in nur einer Minute zu Fuß! Eine gute Gelegenheit für Investoren, die Wohnungen/Häuser mit Pool zur Miete bauen möchten. IMMOBILIE IN EINZIGARTIGER LAGE MIT GROSSEN POTENZIAL!!!
Bei allen unseren Angeboten sind die Preise identisch mit dem Direktkauf bei der Agentur/dem Entwickler in Kroatien, da wir der offizielle Vertreter dieser Agenturen auf dem tschechischen, slowakischen, deutschen und österreichischen Markt sind. Dies gilt ohne zusätzliche Zuschläge für deutschsprachige Dienstleistungen.
Sehr geehrte Kunden, die Besichtigung von Immobilien, die Mitteilung der Lage und andere detaillierte Informationen sind nur mit einem unterzeichneten Vermittlungsvertrag möglich, der die Grundlage für weitere Aktionen wie den Kauf einer Immobilie bildet. Alles steht im Einklang mit dem Gesetz über die Vermittlung beim Kauf von Immobilien. Der Käufer zahlt eine gesetzliche Vermittlungsprovision in Höhe von 3% (+ MwSt.) des vereinbarten Preises, und zwar nur im Falle des Kaufs der Immobilie. Sollte der Kauf nicht zustande kommen, ist der Vertrag für Sie nicht bindend und wird annulliert. Wenn Sie ernsthaft an der Immobilie interessiert sind, senden wir Ihnen den Vertrag auf Anfrage zu.
Wir werden Ihnen innerhalb von 24 Stunden antworten.
Wir bieten nur geprüfte Immobilien an.
Wir garantieren eine hohe Servicequalität.
Wir können Ihnen bei der Vermittlung von Unterkünften während der Besichtigungen helfen.
- Ich habe eine Immobilie aus dem Angebot ausgewählt
- Ich kontaktiere den Makler
- Ich unterschreibe einen Vertretungsvertrag - Details hier! (die Unterzeichnung des Vertrags ist gesetzlich vorgeschrieben)
- Ich richte eine OIB ein - Details hier (die Einrichtung ist gesetzlich vorgeschrieben)
- Besichtigungen vor Ort
- Unterzeichnung der Reservierung, des Kaufvertrags