UMAG, ZAMBRATIJA – Fantastisches neues Gebäude, nur 100 Meter vom Meer und Strand entfernt, exzellente Lage! Apartment mit Terrasse
| Registrationsnummer | DN-44088 |
| Art des Angebots | Verkauf |
| Kategorie | Appartements |
| Bezirk | Istarska |
| Gemeindeteil | Umag |
| Preis | 311 211 € |
| Gesamtfläche | 97 m² |
| Wohnfläche (Wohnung) | 97 m² |
| Entfernung vom meer | 100 m |
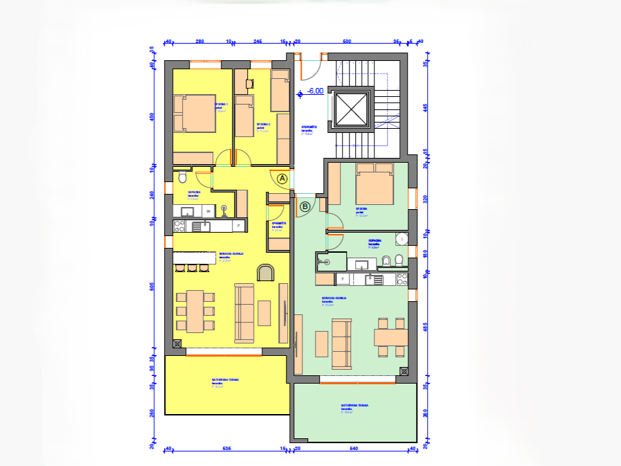
UMAG, ZAMBRATIJA – Traumhaftes Neubaugebäude, nur 100 Meter vom Meer und Strand entfernt, Top-LAGE! Wohnung mit Terrasse Zum Verkauf steht eine Wohnung in einem exklusiven Neubau im ruhigen und begehrten Wohngebiet Monteneto in Umag. Die Immobilie befindet sich in exzellenter Lage, nur 200 Meter vom Meer und Strand entfernt, in einer ruhigen Privatstraße. Stadtzentrum, Promenade und Restaurants sind in unmittelbarer Nähe. Wohnung D befindet sich im ersten Obergeschoss eines modernen, zweistöckigen Neubaus. Die Bruttogeschossfläche beträgt 97 m², die Netto-Nutzfläche 58 m², zuzüglich 16 m² Nebenkosten und einer 8 m² großen überdachten Terrasse. Die Wohnung besteht aus: - einem Schlafzimmer - Badezimmer - Wohnzimmer mit angrenzender Küche - Abstellraum - überdachter Terrasse Zur Wohnung gehören zwei Parkplätze, einer davon überdacht. Diese Immobilie stellt eine sichere Investition in einem Neubau direkt am Meer dar. In Zusammenarbeit mit zuverlässigen Partnern kann die Wohnung komplett möbliert werden, inklusive aller Möbel, Haushaltsgeräte und Beleuchtung, sodass sie sofort bezugsfertig ist. Ausstattung des Gebäudes: - Aufzug - private Parkplätze - private Abstellräume - Fußbodenheizung - Klimaanlage Wohnung D bietet die perfekte Kombination aus funktionalem Raumangebot, prestigeträchtiger Lage und einer sicheren Investition am Meer. Für eine Besichtigung kontaktieren Sie bitte einen unserer vertrauenswürdigen Makler – eine Beratung auf Deutsch ist möglich.
Bei allen unseren Angeboten sind die Preise identisch mit dem Direktkauf bei der Agentur/dem Entwickler in Kroatien, da wir der offizielle Vertreter dieser Agenturen auf dem tschechischen, slowakischen, deutschen und österreichischen Markt sind. Dies gilt ohne zusätzliche Zuschläge für deutschsprachige Dienstleistungen.
Sehr geehrte Kunden, die Besichtigung von Immobilien, die Mitteilung der Lage und andere detaillierte Informationen sind nur mit einem unterzeichneten Vermittlungsvertrag möglich, der die Grundlage für weitere Aktionen wie den Kauf einer Immobilie bildet. Alles steht im Einklang mit dem Gesetz über die Vermittlung beim Kauf von Immobilien. Der Käufer zahlt eine gesetzliche Vermittlungsprovision in Höhe von 3% (+ MwSt.) des vereinbarten Preises, und zwar nur im Falle des Kaufs der Immobilie. Sollte der Kauf nicht zustande kommen, ist der Vertrag für Sie nicht bindend und wird annulliert. Wenn Sie ernsthaft an der Immobilie interessiert sind, senden wir Ihnen den Vertrag auf Anfrage zu.
Wir werden Ihnen innerhalb von 24 Stunden antworten.
Wir bieten nur geprüfte Immobilien an.
Wir garantieren eine hohe Servicequalität.
Wir können Ihnen bei der Vermittlung von Unterkünften während der Besichtigungen helfen.
- Ich habe eine Immobilie aus dem Angebot ausgewählt
- Ich kontaktiere den Makler
- Ich unterschreibe einen Vertretungsvertrag - Details hier! (die Unterzeichnung des Vertrags ist gesetzlich vorgeschrieben)
- Ich richte eine OIB ein - Details hier (die Einrichtung ist gesetzlich vorgeschrieben)
- Besichtigungen vor Ort
- Unterzeichnung der Reservierung, des Kaufvertrags