OPATIJA, MOŠĆENIČKA DRAGA – Baugrundstück 1920 m2 MIT 2 BAUGENEHMIGUNGEN!! für 2 Villen mit Pool und Meerblick
| Registrationsnummer | DN-36917 |
| Art des Angebots | Verkauf |
| Kategorie | Bauland |
| Bezirk | Primorsko-goranska |
| Gemeindeteil | Mošćenička Draga |
| Preis | 625 000 € |
| Preis pro m2 | 325 €/m² |
| Gesamtfläche | 1 920 m² |
| Strom | |
| Wasser |
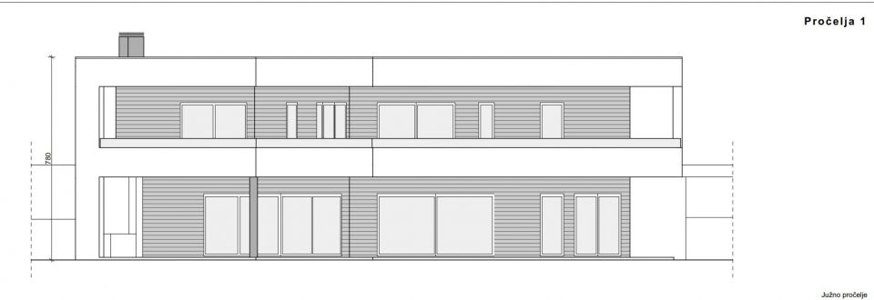
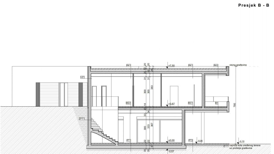
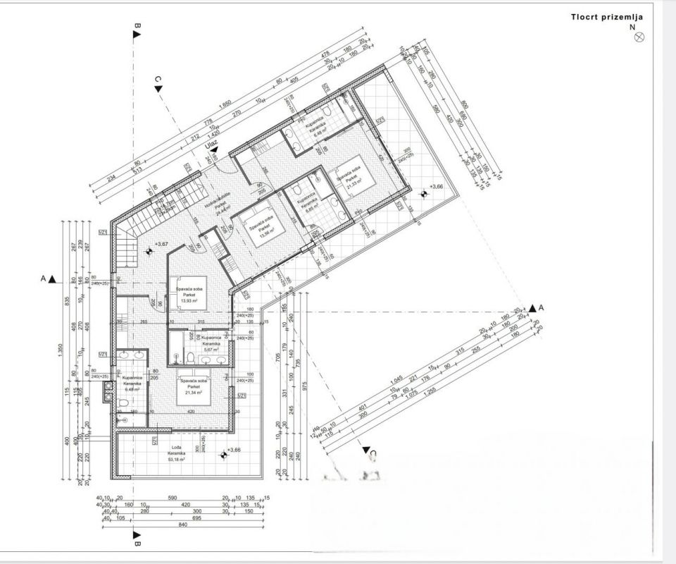
OPATIJA RIVIERA – attraktives Grundstück mit Baugenehmigung für den Bau von zwei Villen mit Swimmingpool und Meerblick Zum Verkauf steht ein Baugrundstück von 1920 m² in Mošćenička Draga mit gültiger Baugenehmigung für den Bau von zwei Luxusvillen mit Swimmingpool. Zum Grundstück liegen die vollständigen Projektunterlagen sowie die bezahlten Versorgungs- und Wassergebühren bei, sodass ein sofortiger Baubeginn möglich ist. Jede Villa erstreckt sich über zwei Etagen mit einer Gesamtfläche von 250 m², mit einer Loggia von 53 m² und einer überdachten Terrasse von 71 m². Das Erdgeschoss jeder Villa umfasst ein Wohnzimmer, eine Küche mit Esszimmer, eine Sauna, ein Badezimmer, eine Waschküche, einen Maschinenraum und eine überdachte Terrasse. Im Obergeschoss befinden sich vier Schlafzimmer, jeweils mit eigenem Badezimmer. Vor jeder Villa ist ein 50 m² großer Swimmingpool geplant. Die Villen sind so konzipiert, dass sie alle Kriterien einer 5-Sterne-Kategorisierung erfüllen. Zum Heizen ist eine Fußbodenheizung mit elektrischer Wärmepumpe vorgesehen, für die Kühlung wird eine autarke Multisplit-Klimaanlage zuständig sein. Das Grundstück befindet sich in ruhiger Lage, umgeben von Grün, mit wunderschönem Blick auf das Meer und die Insel Cres und ist nur 1 km vom Zentrum von Mošćenička Draga und den schönsten Stränden der Riviera von Opatija entfernt. Die Zufahrt zum Grundstück erfolgt über eine Asphaltstraße, sämtliche Versorgungsanschlüsse sind auf das Gelände geführt. Dieses Grundstück stellt eine hervorragende Gelegenheit für Investoren dar, die sich mit dem Bau von Luxusmiethäusern beschäftigen, aber auch für diejenigen, die ein Ferienhaus mit Swimmingpool oder ein Einfamilienhaus in einer ruhigen und friedlichen Umgebung bauen möchten. Das Grundstück ist komplett geräumt und bebaubar, das Grundstück ist sauber und ordentlich. Das Anwesen ist nur 1,2 km Luftlinie vom Meer entfernt, bzw. 1,4 km mit dem Auto (ca. 4 Autominuten), was diesen Standort für eine Investition sehr attraktiv macht. Vereinbaren Sie zur Objektbesichtigung einen telefonischen Termin mit einem Makler Ihres Vertrauens - Beratung auch auf Deutsch möglich.
Bei allen unseren Angeboten sind die Preise identisch mit dem Direktkauf bei der Agentur/dem Entwickler in Kroatien, da wir der offizielle Vertreter dieser Agenturen auf dem tschechischen, slowakischen, deutschen und österreichischen Markt sind. Dies gilt ohne zusätzliche Zuschläge für deutschsprachige Dienstleistungen.
Sehr geehrte Kunden, die Besichtigung von Immobilien, die Mitteilung der Lage und andere detaillierte Informationen sind nur mit einem unterzeichneten Vermittlungsvertrag möglich, der die Grundlage für weitere Aktionen wie den Kauf einer Immobilie bildet. Alles steht im Einklang mit dem Gesetz über die Vermittlung beim Kauf von Immobilien. Der Käufer zahlt eine gesetzliche Vermittlungsprovision in Höhe von 3% (+ MwSt.) des vereinbarten Preises, und zwar nur im Falle des Kaufs der Immobilie. Sollte der Kauf nicht zustande kommen, ist der Vertrag für Sie nicht bindend und wird annulliert. Wenn Sie ernsthaft an der Immobilie interessiert sind, senden wir Ihnen den Vertrag auf Anfrage zu.
Wir werden Ihnen innerhalb von 24 Stunden antworten.
Wir bieten nur geprüfte Immobilien an.
Wir garantieren eine hohe Servicequalität.
Wir können Ihnen bei der Vermittlung von Unterkünften während der Besichtigungen helfen.
- Ich habe eine Immobilie aus dem Angebot ausgewählt
- Ich kontaktiere den Makler
- Ich unterschreibe einen Vertretungsvertrag - Details hier! (die Unterzeichnung des Vertrags ist gesetzlich vorgeschrieben)
- Ich richte eine OIB ein - Details hier (die Einrichtung ist gesetzlich vorgeschrieben)
- Besichtigungen vor Ort
- Unterzeichnung der Reservierung, des Kaufvertrags