OPATIJA, MOŠĆENIČKA DRAGA – Baugrundstück 960 m² MIT BAUGENEHMIGUNG!! für eine Villa mit Pool und Meerblick
| Registrationsnummer | DN-36915 |
| Art des Angebots | Verkauf |
| Kategorie | Bauland |
| Bezirk | Primorsko-goranska |
| Gemeindeteil | Mošćenička Draga |
| Preis | 325 000 € |
| Preis pro m2 | 338 €/m² |
| Gesamtfläche | 960 m² |
| Strom | |
| Wasser |
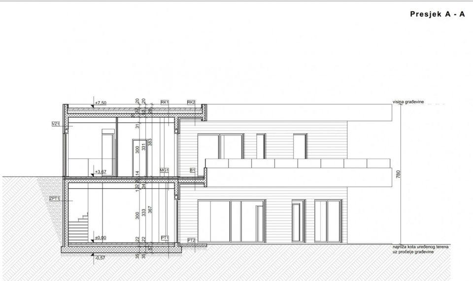
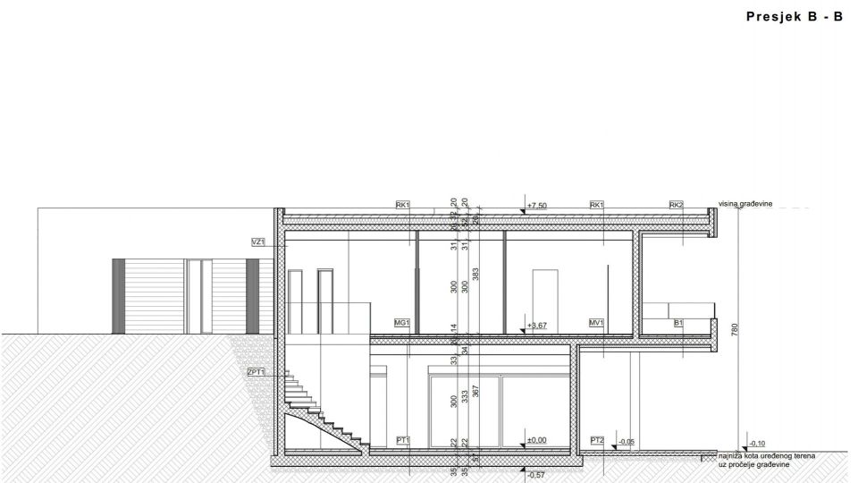
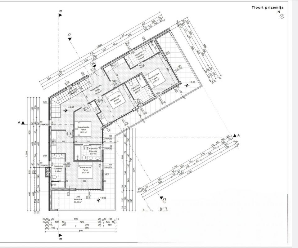
OPATIJA RIVIERA – Grundstück mit Baugenehmigung für eine Villa mit Swimmingpool und Meerblick Zum Verkauf steht ein 960 m² großes Baugrundstück in Mošćenička Draga, ideal für den Bau einer Luxusvilla mit Swimmingpool. Das Gelände befindet sich in ruhiger Lage, umgeben von Grün, mit wunderschönem Blick auf das Meer und die Insel Cres. Das Grundstück ist sauber geräumt und bereit zur Bebauung. Es liegt 1 km vom Zentrum von Mošćenička Draga und einem der schönsten Strände der Riviera von Opatija entfernt. Die Baugenehmigung liegt vor, die Nebenkosten- und Wasserbeiträge sind bezahlt. Die Zufahrt erfolgt über eine Asphaltstraße, sämtliche Versorgungseinrichtungen sind auf dem Gelände vorhanden. Das Projekt sieht den Bau einer Luxusvilla auf zwei Etagen mit einer Gesamtfläche von 250 m² vor. Zur Villa gehören eine 53 m² große Loggia und eine 71 m² große überdachte Terrasse. Das Erdgeschoss umfasst ein Wohnzimmer, eine Küche mit Esszimmer, eine Sauna, ein Badezimmer, eine Waschküche, einen Maschinenraum und eine überdachte Terrasse. Im Obergeschoss sind vier Schlafzimmer mit jeweils eigenem Bad geplant. Vor dem Haus ist ein 50 m² großer Swimmingpool geplant. Zum Heizen ist eine Fußbodenheizung mittels Elektro-Wärmepumpe vorgesehen, für die Kühlung sorgt eine autarke Multisplit-Klimaanlage. Das Villenprojekt erfüllt alle Kriterien für eine Fünf-Sterne-Kategorisierung. Es besteht die Möglichkeit, ein Nachbargrundstück zu erwerben, für das ebenfalls eine Genehmigung für ein baugleiches Gebäude vorliegt. Dieses Grundstück stellt eine hervorragende Gelegenheit für Investoren dar, die Luxusvillen zur Miete bauen möchten, aber auch für diejenigen, die ihr eigenes Ferienhaus in einer ruhigen und natürlichen Umgebung bauen möchten. Das Anwesen liegt 1,2 km Luftlinie vom Meer entfernt, mit dem Auto sind es 1,4 km, also etwa vier Autominuten. Vereinbaren Sie zur Objektbesichtigung einen telefonischen Termin mit einem Makler Ihres Vertrauens - Beratung auch auf Deutsch möglich.
Bei allen unseren Angeboten sind die Preise identisch mit dem Direktkauf bei der Agentur/dem Entwickler in Kroatien, da wir der offizielle Vertreter dieser Agenturen auf dem tschechischen, slowakischen, deutschen und österreichischen Markt sind. Dies gilt ohne zusätzliche Zuschläge für deutschsprachige Dienstleistungen.
Sehr geehrte Kunden, die Besichtigung von Immobilien, die Mitteilung der Lage und andere detaillierte Informationen sind nur mit einem unterzeichneten Vermittlungsvertrag möglich, der die Grundlage für weitere Aktionen wie den Kauf einer Immobilie bildet. Alles steht im Einklang mit dem Gesetz über die Vermittlung beim Kauf von Immobilien. Der Käufer zahlt eine gesetzliche Vermittlungsprovision in Höhe von 3% (+ MwSt.) des vereinbarten Preises, und zwar nur im Falle des Kaufs der Immobilie. Sollte der Kauf nicht zustande kommen, ist der Vertrag für Sie nicht bindend und wird annulliert. Wenn Sie ernsthaft an der Immobilie interessiert sind, senden wir Ihnen den Vertrag auf Anfrage zu.
Wir werden Ihnen innerhalb von 24 Stunden antworten.
Wir bieten nur geprüfte Immobilien an.
Wir garantieren eine hohe Servicequalität.
Wir können Ihnen bei der Vermittlung von Unterkünften während der Besichtigungen helfen.
- Ich habe eine Immobilie aus dem Angebot ausgewählt
- Ich kontaktiere den Makler
- Ich unterschreibe einen Vertretungsvertrag - Details hier! (die Unterzeichnung des Vertrags ist gesetzlich vorgeschrieben)
- Ich richte eine OIB ein - Details hier (die Einrichtung ist gesetzlich vorgeschrieben)
- Besichtigungen vor Ort
- Unterzeichnung der Reservierung, des Kaufvertrags