RIJEKA, KANTRIDA – 118 m² große Wohnung in einem luxuriösen Neubau, nur 250 Meter vom Meer entfernt, mit Garage und Panoramablick auf das Meer
| Registrationsnummer | DN-42123 |
| Art des Angebots | Verkauf |
| Kategorie | Appartements |
| Bezirk | Primorsko-goranska |
| Gemeindeteil | Rijeka |
| Preis | 594 000 € |
| Gesamtfläche | 118 m² |
| Wohnfläche (Wohnung) | 118 m² |
| Entfernung vom meer | 250 m |
| Strom | |
| Wasser | |
| Abfall | |
| Klimaanlage |
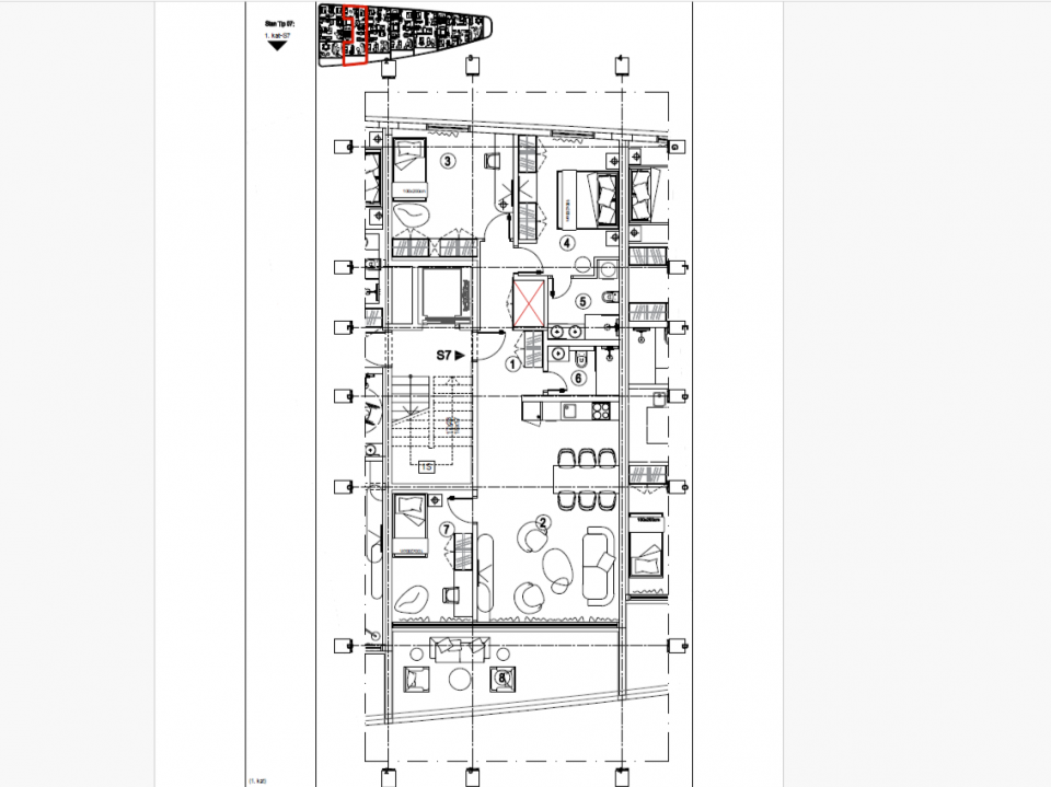
RIJEKA, KANTRIDA – 118 m² große Wohnung in einem luxuriösen Neubau, nur 250 Meter vom Meer entfernt, mit Garage und Panoramablick auf das Meer präsentiert exklusiv einen besonderen Neubau zwischen der Stadt Rijeka und dem schönen Opatija. Das hochwertige Gebäude befindet sich im Wohnviertel Kantrida, einem der hochwertigsten und begehrtesten Viertel in der Kvarner Bucht. Dieses Gebäude mit insgesamt 29 exklusiven Wohnungen liegt in einer Sackgasse ohne Verkehr, mit komplett bebauten Nachbarhäusern, was einen sicheren Meerblick und ein hochwertiges und ruhiges Wohnumfeld garantiert. Es ist wichtig zu beachten, dass dieses Gebäude von jeder Wohnung aus einen Panoramablick auf das Meer bietet, sogar vom Erdgeschoss aus. Das Gebäude verfügt über zwei Tiefgaragenetagen mit 68 Parkplätzen und Abstellräumen, die zu jeder Wohnung gehören. Die 118 m² große Wohnung S7 befindet sich im 1. Stock und besteht aus zwei Schlafzimmern, zwei komfortablen Badezimmern, einer Küche, einem Esszimmer und einem Wohnzimmer. Die Wohnung ist mit einer schönen überdachten Terrasse verbunden, von der aus sich ein wahrer Panoramablick auf das Meer bietet. Die Bruttofläche der Wohnung beträgt 137 m². Die Nutzfläche der Wohnung beträgt 108 m², während die Nettofläche mit Koeffizienten (Terrasse, Garage und Abstellraum) 118 m² beträgt. Vorteile und Besonderheiten der Gebäudeausstattung: – Jedes Wohnzimmer ist nach Süden ausgerichtet – Das Gebäude ist in 3 Eingänge unterteilt, was Privatsphäre und eine unterteilte Mikronachbarschaft gewährleistet, in der Sie eine Gemeinschaft bilden – Bequeme Parkplätze in der Garage – Aufzug – Sicherheitstüren – Fußbodenheizung in der gesamten Wohnung, Wärmepumpe – Deckenhöhe 280 cm !!!! – Aluminium-Tischlerei, große nach Süden ausgerichtete Schiebewände + elektrische Rollläden – Österreichisches Parkett – Hochwertige Keramik und Sanitärkeramik der Spitzenklasse – Schalldämmung in den Wänden Zur Wohnung gehören zwei bequeme Parkplätze in der Garage und ein privater Abstellraum. Diese Mikrolage ist fantastisch, mit einem Blick aus der Vogelperspektive auf das Meer von 250 Metern. Sie erreichen das Meer zu Fuß in nur 4 Minuten. In unmittelbarer Nähe befinden sich Geschäfte, Schulen, ein Fußballplatz, eine Sporthalle, ein Strand, ein städtisches Schwimmbad für Schwimmer und Wasserballspieler sowie Restaurants. Die ideale Umgebung unterstreicht auch die Nähe zum Zentrum von Rijeka, das in 10 Minuten erreichbar ist, sowie die Nähe zu Opatija, das nur 12 Autominuten entfernt ist. Nutzen Sie die Gelegenheit, einen hochwertigen Neubau in Kvarner zu kaufen, eine ideale Gelegenheit, in einem Neubau mit Panoramablick auf das Meer zu wohnen.
Bei allen unseren Angeboten sind die Preise identisch mit dem Direktkauf bei der Agentur/dem Entwickler in Kroatien, da wir der offizielle Vertreter dieser Agenturen auf dem tschechischen, slowakischen, deutschen und österreichischen Markt sind. Dies gilt ohne zusätzliche Zuschläge für deutschsprachige Dienstleistungen.
Sehr geehrte Kunden, die Besichtigung von Immobilien, die Mitteilung der Lage und andere detaillierte Informationen sind nur mit einem unterzeichneten Vermittlungsvertrag möglich, der die Grundlage für weitere Aktionen wie den Kauf einer Immobilie bildet. Alles steht im Einklang mit dem Gesetz über die Vermittlung beim Kauf von Immobilien. Der Käufer zahlt eine gesetzliche Vermittlungsprovision in Höhe von 3% (+ MwSt.) des vereinbarten Preises, und zwar nur im Falle des Kaufs der Immobilie. Sollte der Kauf nicht zustande kommen, ist der Vertrag für Sie nicht bindend und wird annulliert. Wenn Sie ernsthaft an der Immobilie interessiert sind, senden wir Ihnen den Vertrag auf Anfrage zu.
Wir werden Ihnen innerhalb von 24 Stunden antworten.
Wir bieten nur geprüfte Immobilien an.
Wir garantieren eine hohe Servicequalität.
Wir können Ihnen bei der Vermittlung von Unterkünften während der Besichtigungen helfen.
- Ich habe eine Immobilie aus dem Angebot ausgewählt
- Ich kontaktiere den Makler
- Ich unterschreibe einen Vertretungsvertrag - Details hier! (die Unterzeichnung des Vertrags ist gesetzlich vorgeschrieben)
- Ich richte eine OIB ein - Details hier (die Einrichtung ist gesetzlich vorgeschrieben)
- Besichtigungen vor Ort
- Unterzeichnung der Reservierung, des Kaufvertrags