SAMOBOR, ZENTRUM - moderner Neubau im Herzen von Samobor
| Registrationsnummer | DN-37039 |
| Art des Angebots | Verkauf |
| Kategorie | Appartements |
| Bezirk | Zagrebačka |
| Gemeindeteil | Samobor |
| Preis | 255 000 € |
| Gesamtfläche | 86 m² |
| Wohnfläche (Wohnung) | 86 m² |
| Wasser | |
| Abfall | |
| Klimaanlage |
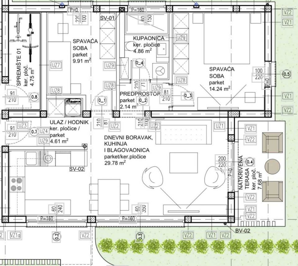
SAMOBOR, ZENTRUM – moderner Neubau im Herzen von Samobor Diese geräumige 86 m2 große Wohnung befindet sich im Erdgeschoss eines neuen Gebäudes in erstklassiger Lage in Samobor und ist perfekt für eine Familie oder Paare, die einen komfortablen Wohnraum mit modernen Annehmlichkeiten suchen. Die Wohnung besteht aus einem geräumigen Wohnzimmer, das mit der Küche und dem Esszimmer verbunden ist, mit einer Gesamtfläche von 29,78 m², die einen angenehmen Raum für Familientreffen bietet. Die Wohnung verfügt über zwei Schlafzimmer – das Hauptschlafzimmer ist 14,24 m² groß und das zweite Schlafzimmer 9,91 m² groß, ideal für einen komfortablen Aufenthalt. Das 4,86 m² große Badezimmer bietet alles, was Sie brauchen, während Flur und Vorraum eine bequeme Bewegung durch die Wohnung ermöglichen. Der Mehrwert der Wohnung liegt in der überdachten Terrasse von 7,68 m² (Koeffizient 0,5 = 3,84 m²), die sich ideal zum Genießen des Außenbereichs eignet, und dem Garten von 111,62 m² (Koeffizient 0,1 = 11,16 m²), in dem Sie Ihre Freizeit verbringen können. Zur Wohnung gehören außerdem zwei PKW-Stellplätze mit je 11,50 m² (Koeffizient 0,2 = 4,60 m²), welche im Preis inbegriffen sind. Zur Wohnung gehört außerdem ein Abstellraum von 4,75 m². Für zusätzlichen Komfort ist die Wohnung mit einer Fußbodenheizung mit Wärmepumpe ausgestattet, die das ganze Jahr über für eine wirtschaftliche und effiziente Beheizung sorgt. Alle Annehmlichkeiten, von der Lage bis zur Bauqualität, machen diese Wohnung zu einer ausgezeichneten Wahl für diejenigen, die in einen modernen, komfortablen Raum in einer ruhigen und gut angebundenen Lage in Samobor ziehen möchten.
Bei allen unseren Angeboten sind die Preise identisch mit dem Direktkauf bei der Agentur/dem Entwickler in Kroatien, da wir der offizielle Vertreter dieser Agenturen auf dem tschechischen, slowakischen, deutschen und österreichischen Markt sind. Dies gilt ohne zusätzliche Zuschläge für deutschsprachige Dienstleistungen.
Sehr geehrte Kunden, die Besichtigung von Immobilien, die Mitteilung der Lage und andere detaillierte Informationen sind nur mit einem unterzeichneten Vermittlungsvertrag möglich, der die Grundlage für weitere Aktionen wie den Kauf einer Immobilie bildet. Alles steht im Einklang mit dem Gesetz über die Vermittlung beim Kauf von Immobilien. Der Käufer zahlt eine gesetzliche Vermittlungsprovision in Höhe von 3% (+ MwSt.) des vereinbarten Preises, und zwar nur im Falle des Kaufs der Immobilie. Sollte der Kauf nicht zustande kommen, ist der Vertrag für Sie nicht bindend und wird annulliert. Wenn Sie ernsthaft an der Immobilie interessiert sind, senden wir Ihnen den Vertrag auf Anfrage zu.
Wir werden Ihnen innerhalb von 24 Stunden antworten.
Wir bieten nur geprüfte Immobilien an.
Wir garantieren eine hohe Servicequalität.
Wir können Ihnen bei der Vermittlung von Unterkünften während der Besichtigungen helfen.
- Ich habe eine Immobilie aus dem Angebot ausgewählt
- Ich kontaktiere den Makler
- Ich unterschreibe einen Vertretungsvertrag - Details hier! (die Unterzeichnung des Vertrags ist gesetzlich vorgeschrieben)
- Ich richte eine OIB ein - Details hier (die Einrichtung ist gesetzlich vorgeschrieben)
- Besichtigungen vor Ort
- Unterzeichnung der Reservierung, des Kaufvertrags