ZADAR, DIKLOVAC - Moderne Wohnung mit Garten im Bau S2
| Registrationsnummer | DN-31913 |
| Art des Angebots | Verkauf |
| Kategorie | Appartements |
| Bezirk | Zadarska |
| Gemeindeteil | Zadar |
| Preis | 518 624 € |
| Gesamtfläche | 136 m² |
| Wohnfläche (Wohnung) | 136 m² |
| Entfernung vom meer | 400 m |
| Strom | |
| Wasser | |
| Klimaanlage | |
| Energieintensität | X - Nicht ausgestellt |
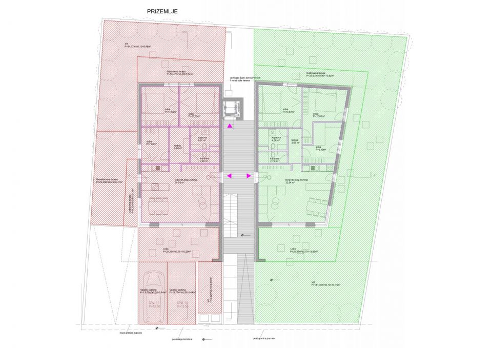
ZADAR, DIKLOVAC - Moderne Wohnung mit Garten im Bau S2 Zum Verkauf steht eine im Bau befindliche moderne Wohnung in Diklovac in Zadar. Die Wohnung mit einer Gesamtwohnfläche von 79,11 m2 befindet sich im Erdgeschoss eines kleineren Wohnhauses mit 6 Wohneinheiten. Es besteht aus einem geräumigen Wohnzimmer, einer Küche und einem Esszimmer, drei Schlafzimmern und zwei Badezimmern. Die Wohnung verfügt über eine Terrasse, Loggia, Garten und zwei Garagenstellplätze. Die Gesamtnutzfläche der Wohnung beträgt zusammen mit allem Zubehör 136,48 m2. Die Wohnung ist voll klimatisiert und verfügt über Fußbodenheizung. Beim Bau wurden hochwertige Materialien wie Stahlbetonbauweise und 12-16 cm Wärmedämmung an der Fassade verwendet. Für die Bodenbeläge wurde erstklassige Keramik verwendet und die Räume sind mit Dreischichtparkett ausgestattet. Die Tischlerei besteht aus Aluminium und es sind elektrische Jalousien, Moskitonetze und reflektierendes Glas installiert. Das Gebäude verfügt über einen Aufzug und eine Tiefgarage. Der geplante Bautermin ist Mitte 2025. Die Wohnung befindet sich in einer sehr ruhigen Lage, 400 m vom Strand entfernt. In unmittelbarer Nähe gibt es eine Vielzahl an Inhalten wie Restaurants und Geschäfte. Zadar ist das urbane und touristische Zentrum Norddalmatiens, einer Stadt, die neben ihrer langen Geschichte und kulturellen Vielfalt auch ein reichhaltiges gastronomisches Angebot bietet. In der Umgebung von Zadar gibt es verschiedene interessante Orte, wie zum Beispiel die historischen Städte Biograd na Moru oder Nin und zahlreiche Inseln an der Adriaküste
Bei allen unseren Angeboten sind die Preise identisch mit dem Direktkauf bei der Agentur/dem Entwickler in Kroatien, da wir der offizielle Vertreter dieser Agenturen auf dem tschechischen, slowakischen, deutschen und österreichischen Markt sind. Dies gilt ohne zusätzliche Zuschläge für deutschsprachige Dienstleistungen.
Sehr geehrte Kunden, die Besichtigung von Immobilien, die Mitteilung der Lage und andere detaillierte Informationen sind nur mit einem unterzeichneten Vermittlungsvertrag möglich, der die Grundlage für weitere Aktionen wie den Kauf einer Immobilie bildet. Alles steht im Einklang mit dem Gesetz über die Vermittlung beim Kauf von Immobilien. Der Käufer zahlt eine gesetzliche Vermittlungsprovision in Höhe von 3% (+ MwSt.) des vereinbarten Preises, und zwar nur im Falle des Kaufs der Immobilie. Sollte der Kauf nicht zustande kommen, ist der Vertrag für Sie nicht bindend und wird annulliert. Wenn Sie ernsthaft an der Immobilie interessiert sind, senden wir Ihnen den Vertrag auf Anfrage zu.
Wir werden Ihnen innerhalb von 24 Stunden antworten.
Wir bieten nur geprüfte Immobilien an.
Wir garantieren eine hohe Servicequalität.
Wir können Ihnen bei der Vermittlung von Unterkünften während der Besichtigungen helfen.
- Ich habe eine Immobilie aus dem Angebot ausgewählt
- Ich kontaktiere den Makler
- Ich unterschreibe einen Vertretungsvertrag - Details hier! (die Unterzeichnung des Vertrags ist gesetzlich vorgeschrieben)
- Ich richte eine OIB ein - Details hier (die Einrichtung ist gesetzlich vorgeschrieben)
- Besichtigungen vor Ort
- Unterzeichnung der Reservierung, des Kaufvertrags