ZADAR, VIR – Luxuriöse Wohnung mit Dachterrasse und wunderschönem Meerblick vor dem Strand Jadro! BS3
| Registrationsnummer | DN-40566 |
| Art des Angebots | Verkauf |
| Kategorie | Appartements |
| Bezirk | Zadarska |
| Gemeindeteil | Vir |
| Preis | 727 000 € |
| Gesamtfläche | 151 m² |
| Wohnfläche (Wohnung) | 151 m² |
| Entfernung vom meer | 45 m |
| Strom | |
| Wasser | |
| Abfall | |
| Klimaanlage |
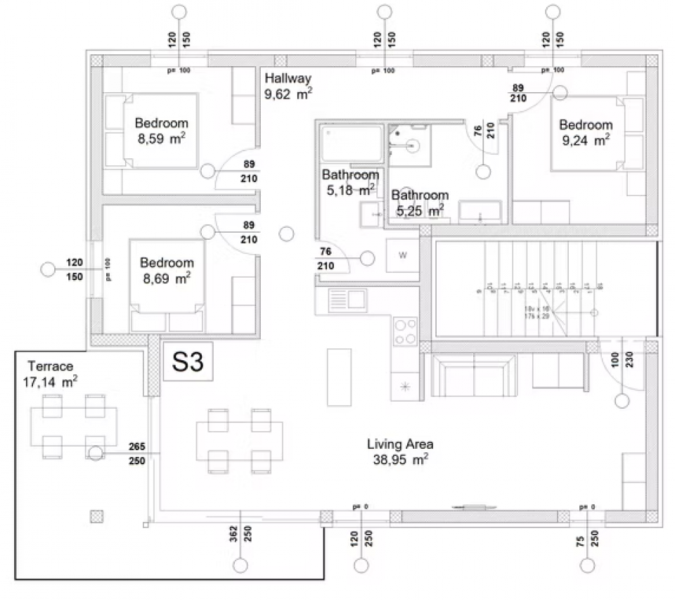
ZADAR, VIR – Luxuriöse Wohnung mit Dachterrasse und wunderschönem Meerblick direkt am Strand Jadro! BS3. Zum Verkauf stehen Wohnungen in zwei modernen Gebäuden – Gebäude B und Gebäude C – in einer der besten Lagen auf der Insel Vir, direkt am berühmtesten und meistbesuchten Strand Jadro. Gebäude A, das direkt am Meer liegt, wurde vollständig verkauft. Jetzt haben Sie die Möglichkeit, sich eine Wohnung in den Gebäuden B und C zu sichern, nur 45 Meter vom Strand entfernt. Alle Wohnungen haben einen wunderschönen Meerblick und wurden sorgfältig entworfen, um das ganze Jahr über maximalen Komfort, Luxus und Funktionalität zu bieten. Wir bieten Wohnung BS3 im Stockwerk von Gebäude B an – eine geräumige Wohnung bestehend aus drei Schlafzimmern, zwei Bädern, einem großen Wohnzimmer, Küche mit Esszimmer, Flur, überdachter Terrasse mit wunderschönem Meerblick und einer Dachterrasse, die ebenfalls einen bezaubernden Panoramablick bietet. Die Wohnung verfügt über einen eigenen Abstellraum und zwei private Parkplätze. Die Gebäude werden nach höchsten Standards gebaut – Stahlbetonfundamente und -platten, tragende Wände aus 25 cm dicken Porotherm Plan-Ziegeln, 12–25 cm starke Trennwände, zusätzliche Schalldämmung zwischen Wohnungen und Zimmern sowie hochwertige 10 cm dicke Austrotherm EPS-Fassadendämmung mit Silikonbeschichtung. In den Treppenhäusern kommt eine schallabsorbierende Korkunterlage zum Einsatz, und auf den Zwischenbodenplatten ist eine zweischichtige Schalldämmung (Rockwool Steprock + AT-L 2) verlegt. Die Aluminiumschreinerei Feal Thermo 85, Fenster und Thermo 150-Schiebewände mit dreischichtigem IZO-Glas werden nach RAL-Standards eingebaut. Die Wohnungen verfügen über Aluminium-Rollläden mit Steuerung über das Somfy TAHOMA-System, Sonnenschutzglas auf sonnenexponierten Flächen, Moskitonetze an allen Fenstern und eine Hörmann-Sicherheitseingangstür mit Elektroschloss und der Möglichkeit einer Codeverriegelung. Die Innentüren sind aus Hörmann Duradecor in elegantem gebürstetem Lärchendesign. Die Böden sind mit wasserfestem und extrem widerstandsfähigem Breitparkett von Swiss Krono ausgelegt. Die Badezimmer und Küchen sind mit großen 60 x 120 cm großen Keramikfliesen in modernem Design, hochwertigen Armaturen von Grohe oder Ideal Standard Cube und begehbaren Duschkabinen ausgestattet. Die Wohnungen sind mit Samsung Windfree-Geräten mit WLAN-Steuerung klimatisiert und verfügen zusätzlich über eine WLAN-gesteuerte elektrische Fußbodenheizung in Badezimmern und Küchen, elektrische Boiler von Ariston Velis, Lüftungsanlagen mit Luftrückgewinnung in Wohnräumen und Küchen sowie Vorbereitungen für elektrische Heizkörper. Die Badezimmer verfügen über einen modernen kubischen Handtuchwärmer. Die gesamte Elektroinstallation umfasst hochwertige Außenbeleuchtung, Vorinstallation einer Alarmanlage über das TAHOMA-System, Glasschalter und -steckdosen von LIVOLO, installierte TV- und Internetnetzwerke in Wohn- und Schlafzimmern sowie Vorinstallation von Ladegeräten für Elektroautos auf den Parkplätzen. Die Terrassen sind mit hochwertiger Keramik, Kunstrasen und dekorativem Kies gestaltet, und die Innenhöfe sind mit Zierpflanzen geschmückt. Private Parkplätze befinden sich in einem umzäunten Hof mit automatischen Toren. Es wurden Ambientebeleuchtung, Briefkästen, Abfalleimer, Zäune und Tore zur Abtrennung privater Bereiche installiert und Vorbereitungen für einen Whirlpool mit Strom- und Abwasseranschluss getroffen. Die Bauarbeiten sollen im Frühjahr 2026 abgeschlossen sein. Ein weiterer Vorteil ist, dass der Verkäufer eine juristische Person ist – der Käufer ist von der Grundsteuer befreit. Vir ist eine der meistbesuchten kroatischen Inseln und durch eine Brücke mit dem Festland verbunden. Ideal für Familienurlaub, Sport, Erholung und Naturgenuss. Der Strand Jadro direkt vor den Gebäuden ist bekannt für sein kristallklares Meer, gepflegte Einrichtungen für Kinder und Erwachsene sowie zahlreiche Restaurants und Cafés am Meer. Die Stadt Zadar, eine der schönsten Städte an der Adria, ist nur 25 Autominuten entfernt und bietet ein reichhaltiges kulturelles und gastronomisches Angebot. Für weitere Informationen und Besichtigungen kontaktieren Sie uns gerne – diese Gelegenheit sollten Sie sich nicht entgehen lassen.
Bei allen unseren Angeboten sind die Preise identisch mit dem Direktkauf bei der Agentur/dem Entwickler in Kroatien, da wir der offizielle Vertreter dieser Agenturen auf dem tschechischen, slowakischen, deutschen und österreichischen Markt sind. Dies gilt ohne zusätzliche Zuschläge für deutschsprachige Dienstleistungen.
Sehr geehrte Kunden, die Besichtigung von Immobilien, die Mitteilung der Lage und andere detaillierte Informationen sind nur mit einem unterzeichneten Vermittlungsvertrag möglich, der die Grundlage für weitere Aktionen wie den Kauf einer Immobilie bildet. Alles steht im Einklang mit dem Gesetz über die Vermittlung beim Kauf von Immobilien. Der Käufer zahlt eine gesetzliche Vermittlungsprovision in Höhe von 3% (+ MwSt.) des vereinbarten Preises, und zwar nur im Falle des Kaufs der Immobilie. Sollte der Kauf nicht zustande kommen, ist der Vertrag für Sie nicht bindend und wird annulliert. Wenn Sie ernsthaft an der Immobilie interessiert sind, senden wir Ihnen den Vertrag auf Anfrage zu.
Wir werden Ihnen innerhalb von 24 Stunden antworten.
Wir bieten nur geprüfte Immobilien an.
Wir garantieren eine hohe Servicequalität.
Wir können Ihnen bei der Vermittlung von Unterkünften während der Besichtigungen helfen.
- Ich habe eine Immobilie aus dem Angebot ausgewählt
- Ich kontaktiere den Makler
- Ich unterschreibe einen Vertretungsvertrag - Details hier! (die Unterzeichnung des Vertrags ist gesetzlich vorgeschrieben)
- Ich richte eine OIB ein - Details hier (die Einrichtung ist gesetzlich vorgeschrieben)
- Besichtigungen vor Ort
- Unterzeichnung der Reservierung, des Kaufvertrags