ZADAR, VIR – Luxuriöse Wohnung mit herrlicher Aussicht, erste Reihe zum Meer! AS3
| Registrationsnummer | DN-40594 |
| Art des Angebots | Verkauf |
| Kategorie | Appartements |
| Bezirk | Zadarska |
| Gemeindeteil | Vir |
| Preis | 1 035 000 € |
| Gesamtfläche | 154 m² |
| Wohnfläche (Wohnung) | 154 m² |
| Entfernung vom meer | 14 m |
| Strom | |
| Wasser | |
| Abfall | |
| Klimaanlage |
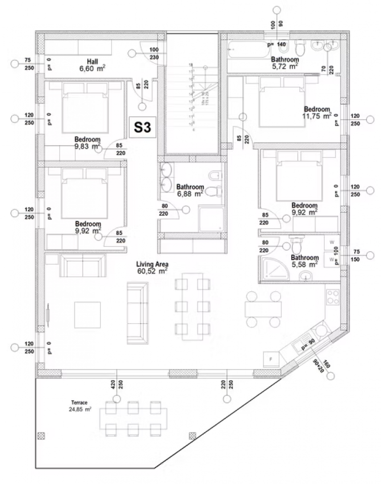
ZADAR, VIR – Luxuriöse Wohnung mit herrlichem Blick, erste Reihe zum Meer! AS3. Zum Verkauf stehen Wohnungen in zwei modernen Gebäuden – Gebäude A und Gebäude B – an einem der attraktivsten und ruhigsten Orte der Insel Vir, nur wenige Schritte vom berühmten Strand Jadro entfernt. Gebäude A befindet sich in erster Reihe zum Meer, nur 14 Meter vom Ufer entfernt, während Gebäude B in zweiter Reihe, etwa 30 Meter vom Meer entfernt, liegt. Der Strand Jadro mit zahlreichen Annehmlichkeiten und kristallklarem Meer ist weniger als 100 Meter entfernt. Die gesamte Umgebung strahlt Ruhe und Grün aus – mit Palmen, mediterranen Bäumen und den angelegten Gärten der Nachbarhäuser. In unmittelbarer Nähe befinden sich außerdem Restaurants, Geschäfte und alle notwendigen Annehmlichkeiten für einen angenehmen Aufenthalt das ganze Jahr über. Wir bieten die Wohnung AS3 im ersten Stock von Gebäude A an – eine geräumige und modern eingerichtete Wohnung bestehend aus drei Schlafzimmern, drei Badezimmern, eines davon gehört zum Hauptschlafzimmer, einem großen Wohnzimmer, Esszimmer und Küche, Flur, Abstellraum und einer überdachten Terrasse mit wunderschönem Meerblick. Zur Wohnung gehören zwei private Parkplätze. Diese Wohnung bietet eine außergewöhnliche Kombination aus Luxus, Funktionalität und Meeresnähe. Die sorgfältig durchdachte Raumaufteilung und hochwertige Verarbeitung sorgen das ganze Jahr über für maximalen Komfort. Die Gebäude werden nach höchsten Standards gebaut – Stahlbetonfundamente und -platten, tragende Wände aus 25 cm dicken Porotherm Plan-Ziegeln, 12–25 cm starke Trennwände, zusätzliche Schalldämmung zwischen Wohnungen und Zimmern sowie hochwertige Fassadendämmung Austrotherm EPS mit 10 cm Dicke und Silikonbeschichtung. In den Treppenhäusern wird eine schallabsorbierende Korkunterlage verwendet, und auf den Zwischenbodenplatten ist eine zweischichtige Schalldämmung (Rockwool Steprock + AT-L 2) verlegt. Feal Thermo 85 Aluminium-Tischlerei, Thermo 150 Fenster und Schiebewände mit dreischichtigem IZO-Glas werden gemäß RAL-Standards eingebaut. Die Wohnungen haben Aluminium-Rollläden mit Steuerung durch das Somfy TAHOMA-System, Sonnenschutzglas auf sonnigen Flächen, Moskitonetze an allen Fenstern und Hörmann-Sicherheits-Eingangstüren mit Elektroschloss und der Möglichkeit einer Codeverriegelung. Die Innentüren sind aus Hörmann Duradecor in elegantem gebürstetem Lärchenholzdesign. Die Böden sind mit wasserfestem und extrem widerstandsfähigem Breitparkett von Swiss Krono ausgelegt. Die Bäder und Küchen sind mit großformatigen 60x120 cm großen Keramikfliesen in modernem Design, mit hochwertiger Grohe- oder Ideal Standard Cube-Ausstattung und begehbaren Duschkabinen ausgestattet. Die Wohnungen sind mit Samsung Windfree-Geräten mit WLAN-Steuerung klimatisiert und verfügen zusätzlich über eine WLAN-gesteuerte elektrische Fußbodenheizung in Bädern und Küchen, elektrische Boiler von Ariston Velis, Lüftungsanlagen mit Luftrückgewinnung in Wohnräumen und Küchen und Vorbereitungen für elektrische Heizkörper. Die Bäder haben einen modernen kubischen Handtuchwärmer. Die gesamte Elektroinstallation umfasst hochwertige Außenbeleuchtung, eine Vorinstallation für eine Alarmanlage über das TAHOMA-System, LIVOLO-Glasschalter und -Steckdosen, installierte TV- und Internet-Netzwerke in Wohn- und Schlafzimmern sowie die Vorinstallation von Ladegeräten für Elektroautos auf Parkplätzen. Die Terrassen sind mit hochwertiger Keramik, Kunstrasen und dekorativem Kies ausgestattet, und die Innenhöfe sind mit Zierpflanzen bepflanzt. Private Parkplätze befinden sich in einem umzäunten Hof mit automatischen Toren. Es wurden Ambientebeleuchtung, Briefkästen, Abfalleimer, Zäune und Tore zur Abtrennung privater Bereiche sowie Vorbereitungen für einen Whirlpool mit Strom- und Abwasseranschluss installiert. Die geplante Fertigstellung der Bauarbeiten ist für Frühjahr 2026 geplant. Ein weiterer Vorteil ist die juristische Person des Verkäufers – der Käufer ist von der Grundsteuer befreit. Vir ist eine der meistbesuchten kroatischen Inseln, durch eine Brücke mit dem Festland verbunden und ideal für Familienurlaub, Sport, Erholung und Naturgenuss. Der Strand Jadro direkt vor den Gebäuden ist bekannt für sein kristallklares Meer, seine gepflegten Einrichtungen, Angebote für Kinder und Erwachsene sowie zahlreiche Restaurants und Cafés am Meer. Zadar, eine der schönsten Städte an der Adria, ist nur 25 Autominuten entfernt und bietet ein reichhaltiges kulturelles und gastronomisches Angebot. Für weitere Informationen und Besichtigungen kontaktieren Sie uns bitte – diese Gelegenheit sollten Sie sich nicht entgehen lassen.
Bei allen unseren Angeboten sind die Preise identisch mit dem Direktkauf bei der Agentur/dem Entwickler in Kroatien, da wir der offizielle Vertreter dieser Agenturen auf dem tschechischen, slowakischen, deutschen und österreichischen Markt sind. Dies gilt ohne zusätzliche Zuschläge für deutschsprachige Dienstleistungen.
Sehr geehrte Kunden, die Besichtigung von Immobilien, die Mitteilung der Lage und andere detaillierte Informationen sind nur mit einem unterzeichneten Vermittlungsvertrag möglich, der die Grundlage für weitere Aktionen wie den Kauf einer Immobilie bildet. Alles steht im Einklang mit dem Gesetz über die Vermittlung beim Kauf von Immobilien. Der Käufer zahlt eine gesetzliche Vermittlungsprovision in Höhe von 3% (+ MwSt.) des vereinbarten Preises, und zwar nur im Falle des Kaufs der Immobilie. Sollte der Kauf nicht zustande kommen, ist der Vertrag für Sie nicht bindend und wird annulliert. Wenn Sie ernsthaft an der Immobilie interessiert sind, senden wir Ihnen den Vertrag auf Anfrage zu.
Wir werden Ihnen innerhalb von 24 Stunden antworten.
Wir bieten nur geprüfte Immobilien an.
Wir garantieren eine hohe Servicequalität.
Wir können Ihnen bei der Vermittlung von Unterkünften während der Besichtigungen helfen.
- Ich habe eine Immobilie aus dem Angebot ausgewählt
- Ich kontaktiere den Makler
- Ich unterschreibe einen Vertretungsvertrag - Details hier! (die Unterzeichnung des Vertrags ist gesetzlich vorgeschrieben)
- Ich richte eine OIB ein - Details hier (die Einrichtung ist gesetzlich vorgeschrieben)
- Besichtigungen vor Ort
- Unterzeichnung der Reservierung, des Kaufvertrags