ISTRIEN, POREČ - Einzigartige Wohnung in der Renovierungsphase
| Registrationsnummer | DN-45131 |
| Art des Angebots | Verkauf |
| Kategorie | Appartements |
| Bezirk | Istarska |
| Gemeindeteil | Poreč |
| Preis | 258 330 € |
| Gesamtfläche | 121 m² |
| Wohnfläche (Wohnung) | 121 m² |
| Entfernung vom meer | 3 500 m |
| Strom | |
| Wasser | |
| Abfall | |
| Heizung | ano |
| Energieintensität | X - Nicht ausgestellt |
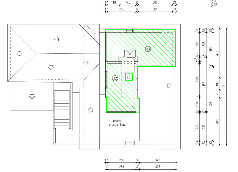
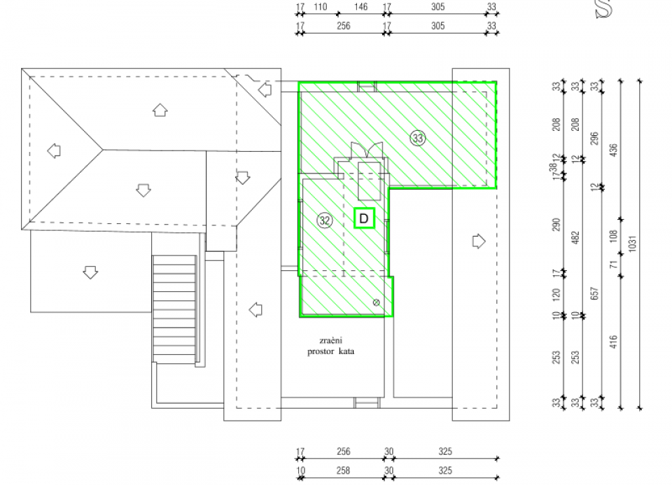
ISTRIEN, POREČ – Einzigartige Wohnung in Renovierungsphase Unweit des Zentrums von Poreč und wunderschöner Strände, in einem ruhigen und authentischen Dorf, steht eine Wohnung mit besonderer Geschichte und Charme zum Verkauf. Sie befindet sich in der Renovierungsphase und ist bald bezugsfertig. Die Wohnung liegt im 1. Obergeschoss und bietet somit die ideale Balance zwischen Privatsphäre und praktischer Nutzung. Die Fertigstellung ist innerhalb eines Monats geplant. Die Wohnung verfügt über eine Wohnfläche von 95,80 m². Eine großzügige Terrasse und eine 20,77 m² große Sommerküche verleihen dieser Immobilie zusätzlichen Wert – perfekt zum Genießen, für gesellige Stunden und den mediterranen Lebensstil. Wohnungsaufteilung - Wohnzimmer 17,81 m² - Küche und Esszimmer 10,02 m² - Flur 6,00 m² - Arbeitszimmer (umgebaut) 8,53 m² - Schlafzimmer 8,19 m² - Badezimmer 2,62 m² - Schlafzimmer mit Bad 9,04 m² + 6,36 m² Galerie 1. OG - Arbeitszimmer 11,88 m² - Abstellraum 15,35 m² * Renoviert – sofort bezugsfertig * Klimaanlage in den Schlafzimmern * Kamin im Wohnzimmer * Private Sommerküche und Terrasse * Praktisch und komfortabel * Ruhige Lage in der Nähe von Stadt und Meer * Charmante und gemütliche Wohnung in einem Haus mit Geschichte VORTEILE DER LAGE - Zentrumsnah von Poreč - Nur wenige Minuten vom gepflegten Strand entfernt - In der Nähe von Restaurants, Geschäften und allen Annehmlichkeiten - In der Nähe von touristischen und Erholungsgebieten Die Lage bietet die perfekte Kombination aus Privatsphäre, Natur und städtischer Anbindung. Ideal für alle, die suchen nach: *Privatwohnungen *Urlaub am Meer *Ferienwohnungen *einer Kapitalanlage mit großem Potenzial *einer Immobilie, die ein Gefühl von Zuhause, Wärme und mediterranem Lebensstil vermittelt
Bei allen unseren Angeboten sind die Preise identisch mit dem Direktkauf bei der Agentur/dem Entwickler in Kroatien, da wir der offizielle Vertreter dieser Agenturen auf dem tschechischen, slowakischen, deutschen und österreichischen Markt sind. Dies gilt ohne zusätzliche Zuschläge für deutschsprachige Dienstleistungen.
Sehr geehrte Kunden, die Besichtigung von Immobilien, die Mitteilung der Lage und andere detaillierte Informationen sind nur mit einem unterzeichneten Vermittlungsvertrag möglich, der die Grundlage für weitere Aktionen wie den Kauf einer Immobilie bildet. Alles steht im Einklang mit dem Gesetz über die Vermittlung beim Kauf von Immobilien. Der Käufer zahlt eine gesetzliche Vermittlungsprovision in Höhe von 3% (+ MwSt.) des vereinbarten Preises, und zwar nur im Falle des Kaufs der Immobilie. Sollte der Kauf nicht zustande kommen, ist der Vertrag für Sie nicht bindend und wird annulliert. Wenn Sie ernsthaft an der Immobilie interessiert sind, senden wir Ihnen den Vertrag auf Anfrage zu.
Wir werden Ihnen innerhalb von 24 Stunden antworten.
Wir bieten nur geprüfte Immobilien an.
Wir garantieren eine hohe Servicequalität.
Wir können Ihnen bei der Vermittlung von Unterkünften während der Besichtigungen helfen.
- Ich habe eine Immobilie aus dem Angebot ausgewählt
- Ich kontaktiere den Makler
- Ich unterschreibe einen Vertretungsvertrag - Details hier! (die Unterzeichnung des Vertrags ist gesetzlich vorgeschrieben)
- Ich richte eine OIB ein - Details hier (die Einrichtung ist gesetzlich vorgeschrieben)
- Besichtigungen vor Ort
- Unterzeichnung der Reservierung, des Kaufvertrags